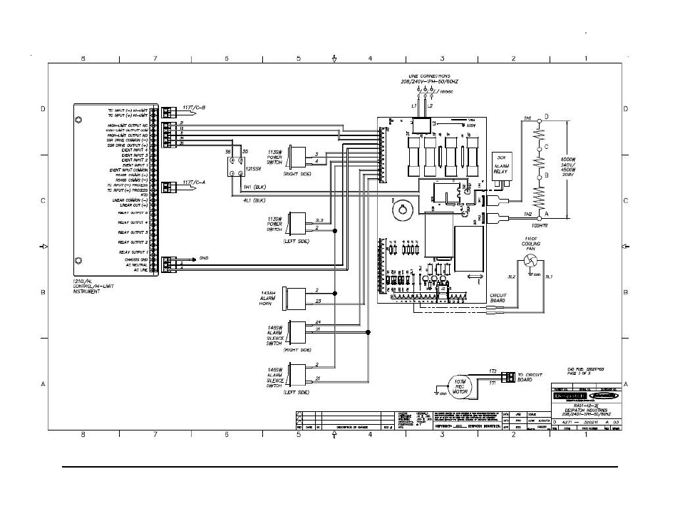
Despatch RAD1-42 -2E with Protocol 3 User Manual
Page 34
See also other documents in the category Despatch Kiln:
- 924E Equipment Manual (C-155)Rev 2/11 (67 pages)
- LAC1-33H Manual C-15 Rev 12/71 (6 pages)
- LAC2-18-5 (81 pages)
- LAC2-18-6 (44 pages)
- LAC2-18-7 (58 pages)
- LAD Series WITH PROTOCOL PLUS (68 pages)
- LBB1-xxA/B-1 (75 pages)
- LBB1-xxA/B-2 (74 pages)
- LCC1-11-2 (49 pages)
- LCC1-51N-3 (105 pages)
- Stackable LCC/LCD (69 pages)
- Stackable LCC/LCD-4 (67 pages)
- LCC/LCD2-14-4 Oven Series with Protocol 3 (59 pages)
- LCC/LCD2-14-3 Non Pass Through Series (81 pages)
- LCC/LCD2-14PT-3 Pass Through Series (80 pages)
- LEB Series (60 pages)
- LFD Series with Protocol Plus (68 pages)
- LND Series with Protocol Plus (71 pages)
- RAD Series (58 pages)
- RAD1-42-2E with Protocol Plus (74 pages)
- RBC1-50 with Protocol Plus (39 pages)
- RFD Series (63 pages)
- RFD1-42 -2E with Protocol 3 (39 pages)
- RFD1-42-2E with Protocol Plus (75 pages)
- Heater Welding (2 pages)
- S Type (95 pages)
