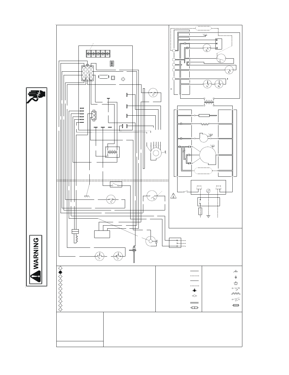
Gme8 w, Iring, Iagram – Amana Gas Furnance S)8 User Manual
Page 44

44
GME8 W
IRING
D
IAGRAM
H
IG
H
V
O
LTA
G
E
!
D
IS
CO
NNE
CT
AL
L
PO
WER
BE
F
O
RE
SE
R
V
IC
IN
G
OR
IN
S
T
A
LLI
N
G
TH
IS
UNI
T
.
M
U
LTI
P
L
E
PO
WER
S
O
U
RCE
S
MA
Y
BE
PR
E
S
EN
T
. F
AIL
U
RE
TO
DO
SO
MA
Y
CAU
S
E
PR
O
P
E
R
T
Y
DAM
AG
E
,
P
E
RS
O
NAL
INJ
URY
OR
DE
AT
H
.
Wiring is subject to change. Always refer to the wiring diagram on the unit for the most up-to-date wiring.
BK
(H
I)
AUXILIARY
PROPERLY POLARIZED AND GROUNDED.
SERVICING.WIRING TO UNIT MUST BE
WARNING:DISCONNECT POWER BEFORE
XFMR
BK
115V
24V
BR
LIMITS
WH
(N
)
RD
(M
E
D
LO
W
)
OR
(M
E
D
)
BL
(M
E
D
HI
)
BL
O
W
E
R
C
IRC
UL
AT
O
R
24V
THER
M
O
S
TA
T
C
O
NNEC
T
IO
NS
RO2 (11)
LIMIT
GND (8)
HUMIDIFIER
XFMR (6)
GND
G
C
W
Y
TO
MICRO
R
MVL (2)
MVC (9)
AUXILIARY
LIMIT CONTROLS
PS (10)
PSO (4)
HLI (7)
HLO (1)
CONTROL MODULE
INTEGRATED
NO
SWITCH
PRESSURE
ID BLOWER
VALVE
M1
GAS
C2
C
AUTO RESET
PRIMARY
MANUAL RESET ROLLOUT
LIMIT CONTROL(S)
115 VAC
FLAME SENSOR
FP
XFMR-H
XFMR (3)
RO1 (5)
24 VAC
HOT SURFACE
IGNITER
IN
TE
G
R
AT
E
D
CO
N
T
RO
L MO
D
U
LE
COOL-H
IGN
IND
ID
BLWR
CIRCULATOR
HE
AT-
H
BLWR
TRANSFORMER
40 VA
CONTROL
XFMR-N
IN
T
E
G
R
A
TE
D
CO
N
T
R
O
L MO
D
U
LE
CIR-N
0140F00658 REV. A
ON SOME MODELS
HUMIDIFIER
24 VAC
INDUCED DRAFT
BLOWER COMPARTMENT
BURNER COMPARTMENT
INTEGRATED CONTROL
INTERNAL TO
BLOWER
PRIMARY LIMIT
WH
GR
BK
IGNITER
SURFACE
HOT
PU
RD
15 PIN PLUG
C
NO
SWITCH
PRESSURE
BR
SENSOR
FLAME
BK
WH
ROLLOUT LIMITS
RAPID FLASHES = REVERSED 115 VAC POLARITY/VERIFY GND
SYSTEM LOCKOUT (RETRIES/RECYCLES EXCEEDED)
7 FLASHES = LOW FLAME SIGNAL
5 FLASHES = FLAME SENSE WITHOUT GAS VALVE
4 FLASHES = OPEN HIGH LIMIT
3 FLASHES = PRESSURE SWITCH STUCK OPEN
2 FLASHES = PRESSURE SWITCH STUCK CLOSED
STEADY ON = NORMAL OPERATION
OFF = CONTROL FAILURE
5
1 FLASH =
0
1
2
3
4
PU
6 FLASHES =
OPEN ROLLOUT OR OPEN FUSE
COLOR CODES:
PU PURPLE
OR ORANGE
YL YELLOW
6
7
8
BK BLACK
GR GREEN
BR BROWN
PK PINK
RD RED
GY GRAY
BL BLUE
WH WHITE
PU
OVERCURRENT PROTECTION DEVICE
JUNCTION BOX
MUST BE
WARNING:
SWITCH
WIRING TO UNIT
BEFORE SERVICING.
DISCONNECT POWER
LINE-H
DOOR
AND GROUNDED.
POLARIZED
PROPERLY
L
GND
LINE-N
DISCONNECT
N
SWITCH (TEMP.)
FIELD SPLICE
SWITCH (PRESS.)
PROT. DEVICE
OVERCURRENT
EQUIPMENT GND
TERMINAL
JUNCTION
HI VOLTAGE FIELD
HI VOLTAGE (115V)
LOW VOLTAGE FIELD
LOW VOLTAGE (24V)
PLUG CONNECTION
IGNITER
FIELD GND
IND-N
IGN-N
JUNCTION
BOX
OVERCURRENT PROTECTION
POWER SUPPLY WITH
TO 115 VAC/ 1/60HZ
GND
LINE-N
LINE H
DEVICE
DOOR SWITCH
WH
BK
SWITCH LOCATED IN BLOWER
COMPARTMENT ON SOME MODELS
RD
RD
BL
PU
YL
OR
BR
(SINGLE CONTROL ON SOME MODELS)
(SINGLE CONTROL ON SOME MODELS)
DI
A
G
NO
S
T
IC
LE
D
LO
HE
A
T
-H
PARK
SEE NOTE 6
CO
O
L
-H
HI
HE
A
T
-H
9
7
8
6
5
4
12
C
G
R
W
Y
5 MIN
2 STG
100 SEC
1 STG
AUTO
150 SEC
MODE
2N
D S
TG
DL
Y
HT O
FF DL
Y
2
1
EAC-H
LINE-H
XFMR-H
LI
N
E
NE
UT
R
A
L
FS
11
10
3
2
1
CONTROL MODULE
INTEGRATED
FUSE
PM
1
HI
C
2
3
2 STAGE
GAS VALVE
(HONEY WELL)
WH
24 VAC
HUMIDIFIER
RD
HI
MVH (12)
HI
LO
HE
AT-
H
AIR CLEANER
ELECTRONIC
EAC-N
EAC-H
WH
BL
BR
WH
BL
BK
BK
YL
YL
RD
YL
YL
PU
OR
WH
WH
WH
WH
YL
BL
RD
C
8 FLASHES = CHECK IGNITER OR IMPROPER GROUND
NOTES:
1. SET HEAT ANTICIPATOR ON ROOM THERMOSTAT AT 0.7 AMPS.
2. MANUFACTURER'S SPECIFIED REPLACEMENT PARTS MUST BE USED WHEN SERVICING.
3. IF ANY OF THE ORIGINAL WIRE AS SUPPLIED WITH THE FURNACE MUST BE REPLACED, IT MUST BE REPLACED WITH
WIRING MATERIAL HAVING A TEMPERATURE RATING OF AT LEAST 105 °C. USE COPPER
CONDUCTORS ONLY.
4. BLOWER SPEEDS SHOULD BE ADJUSTED BY INSTALLER TO MATCH THE INSTALLATION REQUIREMENTS SO AS TO
PROVIDE THE CORRECT HEATING TEMPERATURE RISE AND THE CORRECT COOLING CFM. (SEE SPEC SHEET FOR AIR
FLOW CHART)
5. UNIT MUST BE PERMANENTLY GROUNDED AND CONFORM TO N.E.C. AND LOCAL CODES.
6. TO RECALL THE LAST 5 FAULTS, MOST RECENT TO LEAST RECENT, DEPRESS SWITCH FOR MORE THAN 2 SECONDS
WHILE IN STANDBY(NO THERMOSTAT INPUTS).
YL
(L
O
W
)