M, d, h)s8 w, Iring, Iagram – Amana Gas Furnance S)8 User Manual
Page 43

43
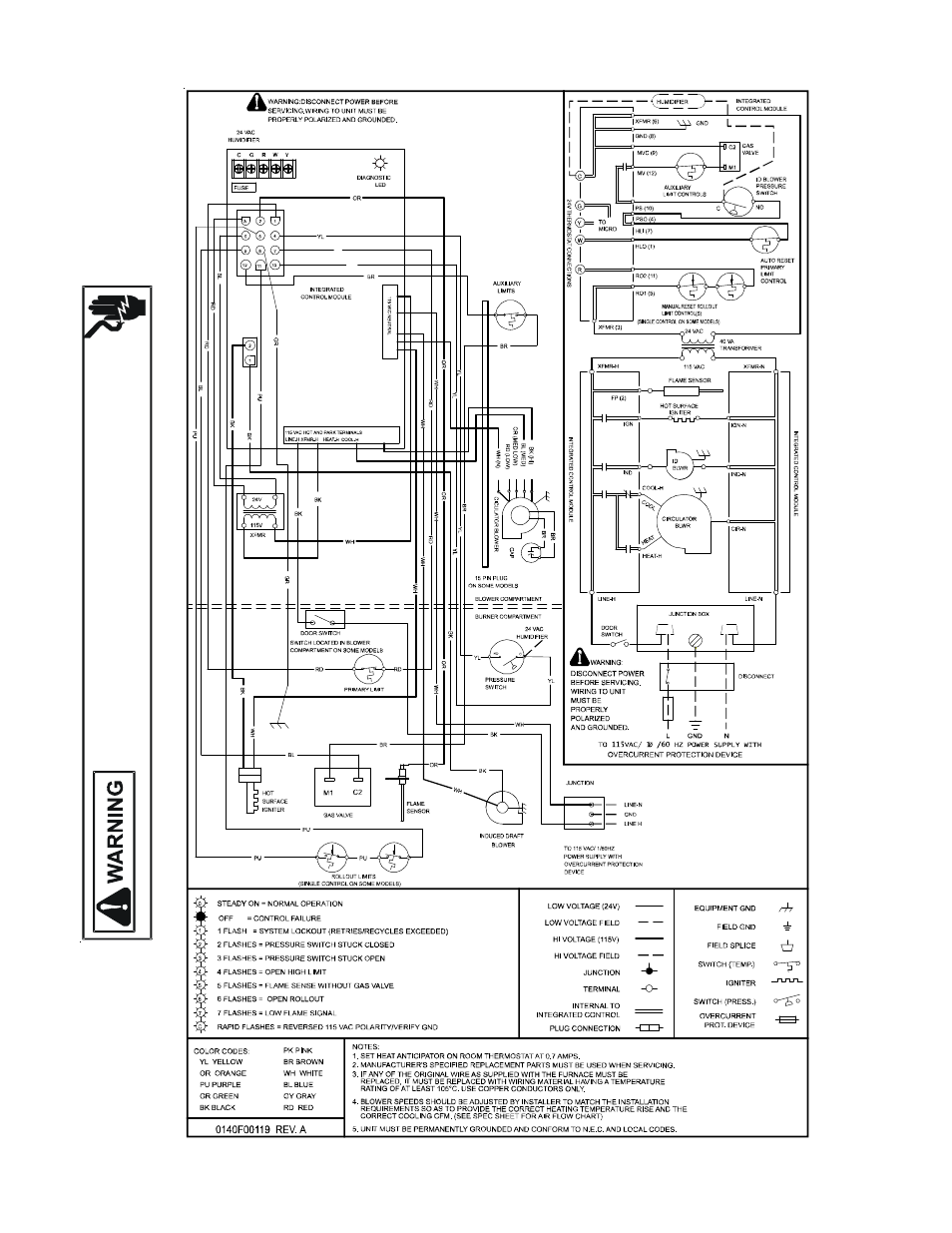
Wiring is subject to change. Always refer to the wiring diagram on the unit for the most up-to-date wiring.
*(M, D, H)S8 W
IRING
D
IAGRAM
H
IG
H
V
O
LTA
G
E
!
D
IS
CO
NNE
CT
AL
L
PO
WER
BE
F
O
RE
SE
R
V
IC
IN
G
OR
IN
S
T
A
LLI
N
G
TH
IS
UNI
T
.
M
U
LTI
P
L
E
PO
WER
S
O
U
RCE
S
MA
Y
BE
PR
E
S
EN
T
. F
AIL
U
RE
TO
DO
SO
MA
Y
CAU
S
E
PR
O
P
E
R
T
Y
DAM
AG
E
,
P
E
RS
O
NAL
INJ
URY
OR
DE
AT
H
.
BOX
This manual is related to the following products: