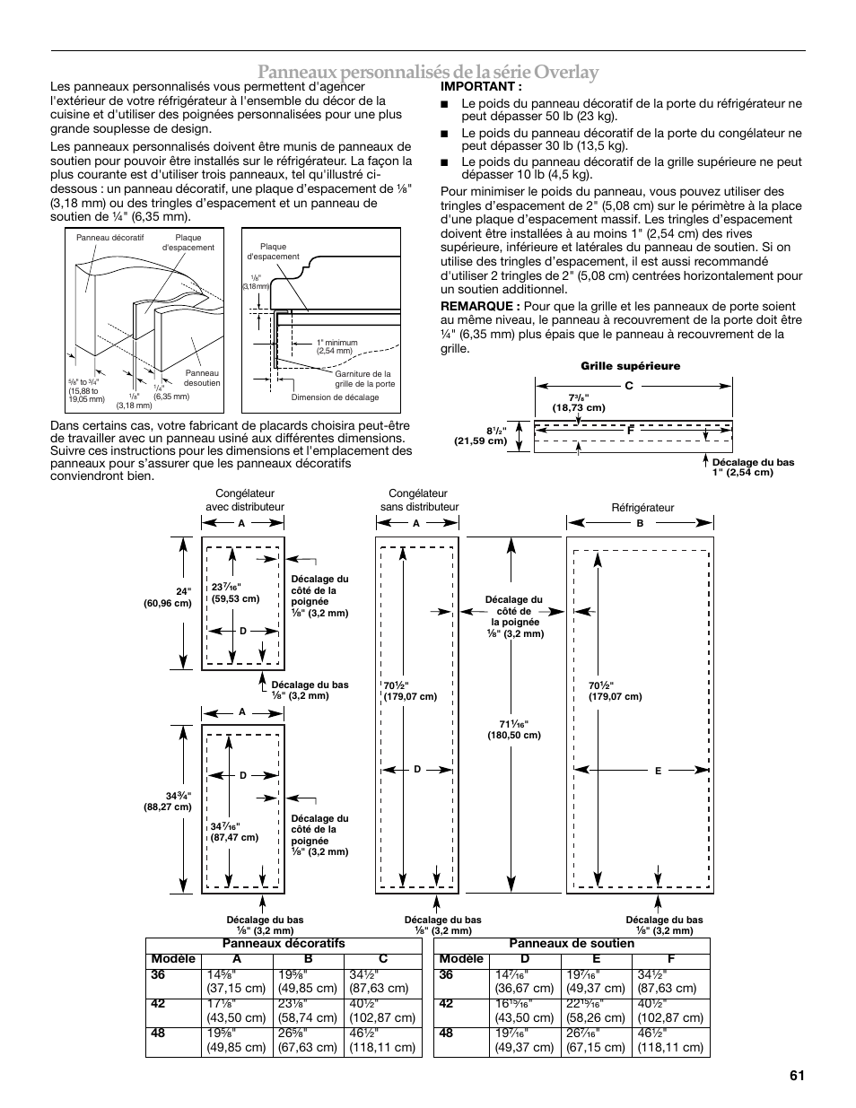
Panneaux personnalisés de la série overlay – KITCHENAID 2309069A User Manual
Page 61
See also other documents in the category KITCHENAID Refrigerators:
- KBFO42FTX02 (20 pages)
- KBLC36FKS01 (18 pages)
- KBLS22KVSS00 (15 pages)
- KBLS36FKT02 (18 pages)
- KBLS22EVMS00 (16 pages)
- DHT-486XP (34 pages)
- KBCS24LSBS02 (6 pages)
- W10206411A (46 pages)
- WF-LC400V (52 pages)
- W10162440A (20 pages)
- KBFS20EVWH00 (15 pages)
- Bottom-Mount Built-In Refrigerator (84 pages)
- Bottom-Mount Built-In Refrigerator (52 pages)
- KBFS25EVMS00 (15 pages)
- KBLS36FKB01 (18 pages)
- 2315184A (48 pages)
- COUNTER DEPTH SIDE BY SIDE REFRIGERATOR (32 pages)
- COUNTER DEPTH SIDE BY SIDE REFRIGERATOR (36 pages)
- W10162467A (47 pages)
- 2318586 (44 pages)
- SIDE BY SIDEBUILT-IN REFRIGERATOR (64 pages)
- 2320680B (80 pages)
- KBLS20EVMS00 (17 pages)
- KBLS19KTSS00 (14 pages)
- KBFS20ETBL00 (15 pages)
- 2307890A (68 pages)
- KBFS25EVMS3 (15 pages)
- 2300274 (32 pages)
- W10167098A (42 pages)
- BUILT-IN REFRIGERATOR (64 pages)
- KBFL25ETBL00 (15 pages)
- T2WG2L (46 pages)
- KBLS20ETSS11 (17 pages)
- 2308392 (44 pages)
- Overlay Model Beverage Center (40 pages)
- KBCO24LSBX00 (5 pages)
- KBLS22EVMS1 (17 pages)
- W10233586 (10 pages)
- SIDE BY SIDE BUILT-IN REFRIGERATOR (68 pages)
- SIDE BY SIDE BUILT-IN REFRIGERATOR (60 pages)
- Side-by-Side Referigerator (64 pages)
- KBFS20ETWH01 (15 pages)
- W10162435A (34 pages)
- BEVERAGECENTER (32 pages)