Multiquip 60HZ GENERATOR DCA25SSIU3 User Manual

Page 56

background image

PAGE 56 — DCA25SSIU3 60 HZ GENERATOR • OPERATION AND PARTS MANUAL — REV. #0 (12/20/10)

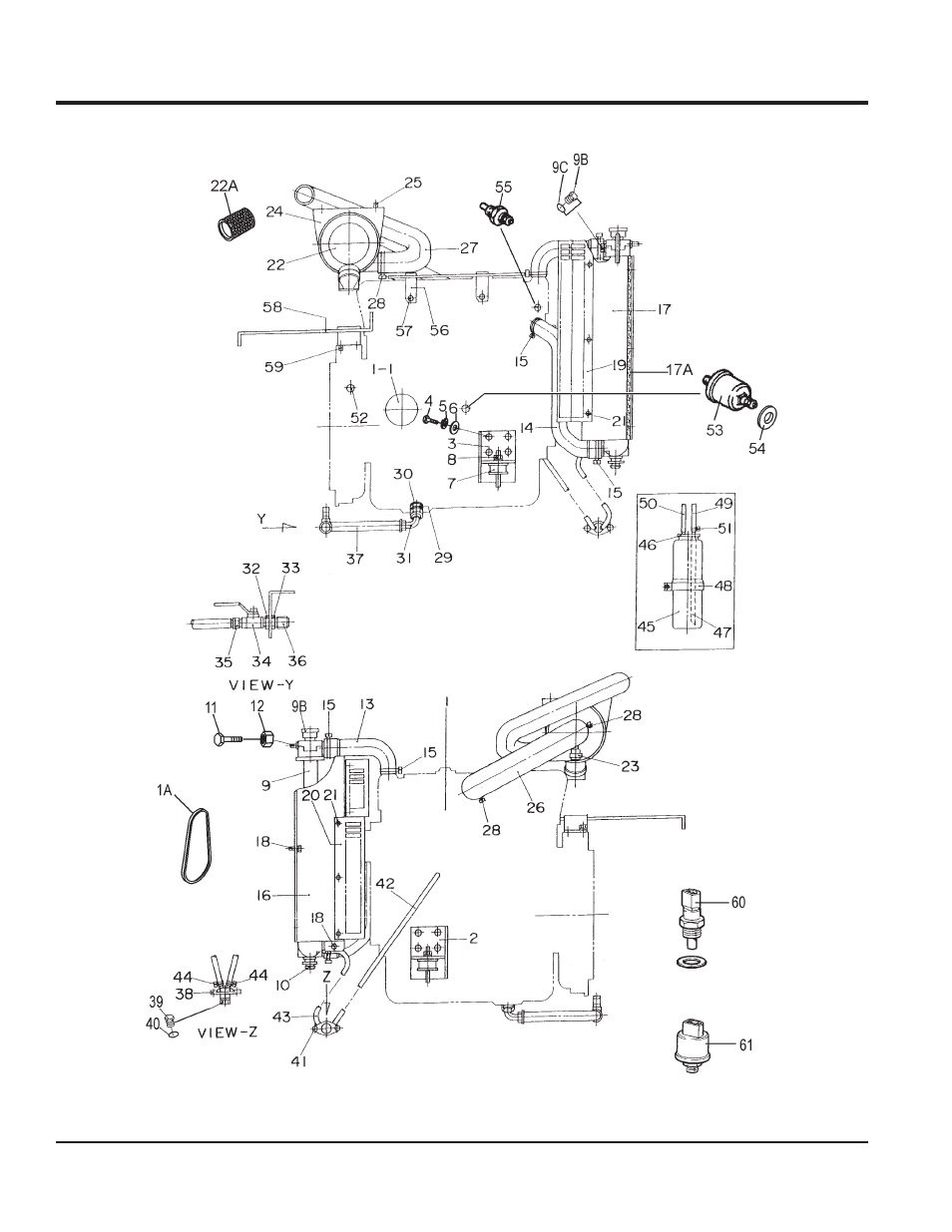
ENGINE AND RADIATOR ASSY. (CONTINUED)

This manual is related to the following products: