Directory
Brands
Multiquip manuals
For the car
60HZ GENERATOR DCA25SSIU3
Manual

Multiquip 60HZ GENERATOR DCA25SSIU3 User Manual

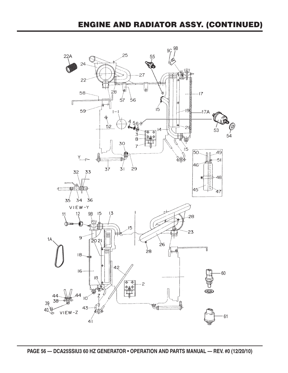
Page 56

  • Text mode
  • Original mode
Multiquip 60HZ GENERATOR DCA25SSIU3 User Manual | Page 56 / 76 Multiquip 60HZ GENERATOR DCA25SSIU3 User Manual | Page 56 / 76
Pages: 1 … 54 55 56 57 58 … 76
  • wrong Brand
  • wrong Model
  • non readable
This manual is related to the following products:
  • DCA25SSIU3
See also other documents in the category Multiquip For the car:
  • Tamping Rammer Mikasa MT-86D (50 pages)
  • TRASH PUMP (hatz 1B40u-2203a diesel engine) Qp4tZtMpXF (118 pages)
  • Control Box Replacement LS600 (8 pages)
  • Mikasa Series Tamping Rammer MTX80 (66 pages)
  • Trash Pump QP3TY (56 pages)
  • Nighthawk Series Dedicated Light Tower LT12D (58 pages)
  • MQ Power Whisperwatt 60HZ Generator DCA150USJ2 (102 pages)
  • Trash Pump QP4TZ (92 pages)
Home Brands Popular manuals Recently added
Manuals Directory

© 2012–2025, azmanual.top
All rights reserved.