Bryant Air Handling Units 524J User Manual
Page 18

18
Legend and Notes For Tables 4 and 5
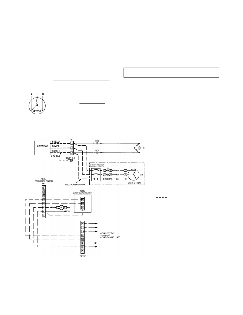
Fig. 16 — Unit Wiring
LEGEND
*Motors are designed for satisfactory operation within 10% of nominal volt-
ages shown. Voltages should not exceed the limits shown in the Voltage Lim-
its column.
NOTES:
1. Minimum circuit amps (MCA) and MOCP values are calculated in accor-
dance with NEC (National Electrical Code), Article 440.
2. Motor FLA values are established in accordance with UL (Underwriters’
Laboratories) Standard 1995.
3. Unbalanced 3-Phase Supply Voltage
Never operate a motor where a phase imbalance in supply voltage is
greater than 2%. Use the following formula to determine the percentage of
voltage imbalance.
EXAMPLE: Supply voltage is 400-3-50.
AB = 393 v
BC = 403 v
AC = 396 v
Determine maximum deviation from average voltage
(AB) 397 – 393 = 4 v
(BC) 403 – 397 = 6 v
(AC) 397 – 396 = 1 v
Maximum deviation is 6 v.
Determine percent voltage imbalance.
This amount of phase imbalance is satisfactory because it is below the maxi-
mum allowable 2%.
FLA
— Full Load Amps
MOCP
— Maximum Overcurrent Protection
% Voltage Imbalance = 100 x
max voltage deviation from average voltage
average voltage
Average Voltage =
393 + 403 + 396
3
=
1192
3
= 397
% Voltage Imbalance = 100 x
6
397
= 1.5%
IMPORTANT:
If the supply voltage phase imbalance is more than
2%, contact your local electric utility company immediately.
LEGEND
NOTE: Use copper conductors only.
EQUIP
—
Equipment
GND
—
Ground
HC
—
Heating Contactor
HTR
—
Electric Heater
IFC
—
Indoor-Fan Contactor
IFM
—
Indoor-Fan Motor
TB
—
Terminal Block
T’STAT
—
Thermostat
Factory Wiring
Field Control Wiring