Bryant Air Handling Units 524J User Manual
Page 10

10
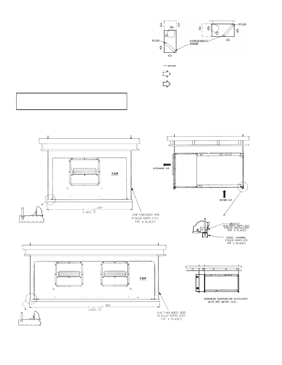
Unit Positioning —
The unit can be mounted on the
floor for vertical application with return air entering the face of
the unit and supply air discharging vertically through the top of
the unit. The unit can also be applied in a horizontal
arrangement with return air entering horizontally and the
supply air discharging horizontally. When applying the unit in
a horizontal arrangement, ensure the condensate drain pan is
located at the bottom center of the unit for adequate condensate
disposal. See Fig. 5 for condensate connections for each unit
position.
Typical positioning and alternate return air locations are shown
in Fig. 5. Alternate return air locations can be used by moving
the unit panel from the alternate return air location to the
standard return air location. Refer to overhead suspension
accessory drawing (Fig. 6) for preferred suspension technique.
The unit needs support underneath to prevent sagging.
Fig. 5 — Typical Unit Positioning
Fig. 6 — Preferred Suspension Technique
IMPORTANT: Do NOT attempt to install unit with return
air entering top panel of unit. Condensate will not drain
from unit.
LEGEND
Accessory Line
Alternate Air Intake and Discharge
Air Intake and Discharge
Note: Maintain recommended clearances
per Figs. 1A–1B
UNIT SIZES 14 - 16
NOTE: Dimensions in [ ] are millimeters
UNIT SIZES 07 - 12
OVERHEAD SUSPENSION ACCESSORY