Bryant Air Handling Units 524J User Manual
Page 12

12
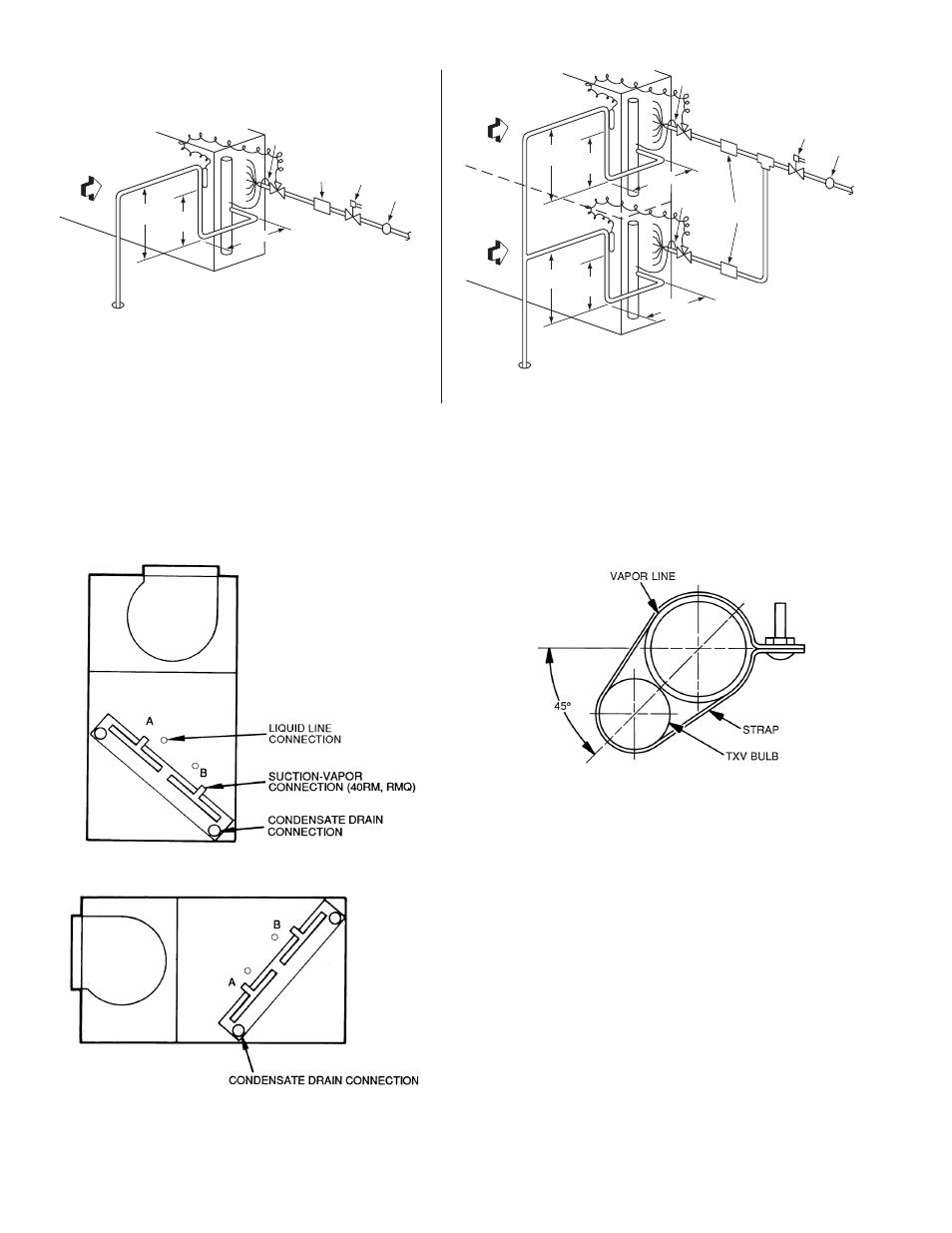
Fig. 8 — Face-Split Coil Suction and Liquid Line Piping (Typical)
Fig. 9 — Typical Evaporator Coil Connections (524J)
Fig. 10 — TXV Sensing Bulb Location
UPPER
SPLIT
AIRFLOW
LOWER
SPLIT
AIRFLOW
15 DIAMS
MIN
10
DIAMS
8 DIAMS
MIN
TXV
SENSING
BULB
EQUALIZER LINE
SIGHT
GLASS
TXV
SOLENOID
VALVE
FILTER
DRIER
TXV
SENSING
BULB
TXV
8 DIAMS
MIN
15 DIAMS
MIN
10
DIAMS
INDOOR
COIL
EQUALIZER
LINE
Single Circuit Coil Piping Configuration - 524J*07, 08
For single compressor condensing units.
Dual Circuit Coil Piping Configuration - 524J*12-16
For single compressor condensing units
UPPER
SPLIT
AIRFLOW
15 DIAMS
MIN
10
DIAMS
8 DIAMS
MIN
TXV
SENSING
BULB
EQUALIZER LINE
SIGHT
GLASS
TXV
SOLENOID
VALVE
FILTER
DRIER
LEGEND:
TXV – Thermostatic Expansion Valve
NOTE: Component location arrangement shown for field installation of
sight glasses, solenoid valves, filter driers, and TXV sensing bulbs.
The TXVs and equilizer lines are factory installed.
FIRST ON/LAST OFF = B
VERTICAL INSTALLATION
FIRST ON/LAST OFF = A
HORIZONTAL INSTALLATION
LEGEND
TXV — Thermostatic Expansion Valve
NOTE: The 8 o’clock position is shown above.