Directory
Brands
Bryant manuals
Conditioners
Air Handling Units 524J
Manual

Bryant Air Handling Units 524J User Manual

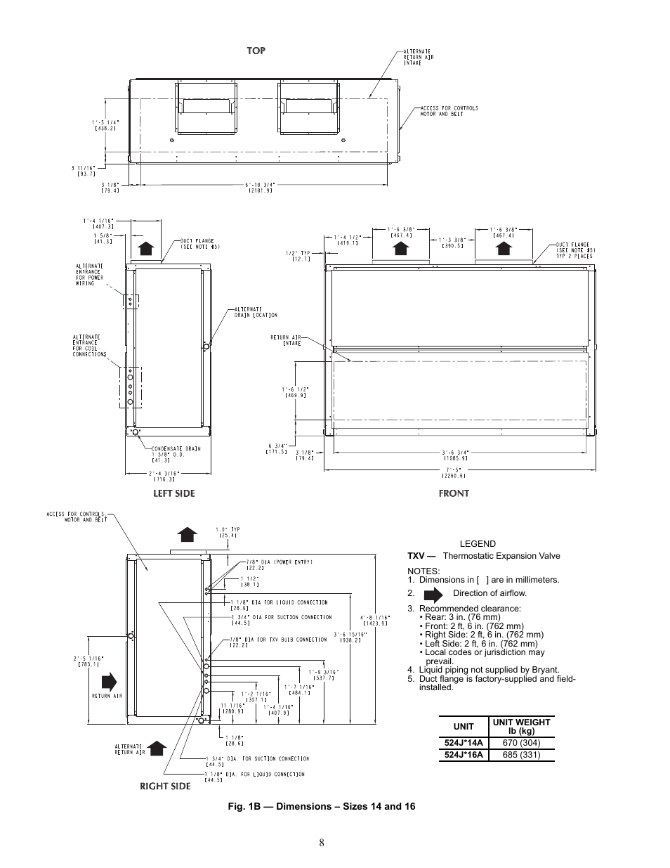
Page 8

  • Text mode
  • Original mode
Bryant Air Handling Units 524J User Manual | Page 8 / 36 Bryant Air Handling Units 524J User Manual | Page 8 / 36
Pages: 1 … 6 7 8 9 10 … 36
  • wrong Brand
  • wrong Model
  • non readable
See also other documents in the category Bryant Conditioners:
  • EVOLUTION 577D----A (40 pages)
  • Packaged Air Handling Units 542J (4 pages)
  • 591B (12 pages)
  • Electric Air Conditoner 597C (28 pages)
  • 599C (2 pages)
  • PREFERREDT A07044 (80 pages)
  • 502A (8 pages)
  • 564A (20 pages)
  • 702B (28 pages)
  • 538J-18-1 (12 pages)
  • 764A (24 pages)
  • 580J*04--12 (73 pages)
  • AIR CONDITIONERS 564A (20 pages)
  • 561G (2 pages)
  • PURON PLUS 598B (40 pages)
  • R-410A 583B (30 pages)
  • 538MNQ (10 pages)
  • EVOLUTION 707D (4 pages)
  • 463AAC008BA (19 pages)
  • DURAPACK 558F (70 pages)
  • 664A (4 pages)
  • 479 D (13 pages)
  • 569D (84 pages)
  • Legacy Air Conditoner H3A (6 pages)
  • 561S (2 pages)
  • R-22 561G (6 pages)
  • 594D (24 pages)
  • 450D (10 pages)
  • 574D (32 pages)
  • DE LUXE 12 SEER 552A (36 pages)
  • R-22 (52 pages)
  • CD5A (8 pages)
  • 564B (20 pages)
  • Air Conditeners 180A (16 pages)
  • 677C--A (36 pages)
  • 559F (48 pages)
  • LEGACY 564B (4 pages)
  • s 123A (6 pages)
  • 598A (8 pages)
  • Air Cooled Condensing Units 569C (20 pages)
  • 580J*08--14D (85 pages)
  • Electric 594D (24 pages)
  • 588A (28 pages)
  • 577C (8 pages)
Home Brands Popular manuals Recently added
Manuals Directory

© 2012–2025, azmanual.top
All rights reserved.