Air Health Air+Health AH-1 User Manual
Page 7

Page 7
Superficie (en
pi
2
)
Purificateur
Aur+Health
(conduits d’au mois
16 po de large)
Volts
Watt
s
Ampère
s
Hz
jusqu'à 2000
1
120
30
0,5
60
4000 2
120
30
0,5
60
REMARQUES :
• Pour les maisons comprenant plusieurs systèmes nous recommandons l’utilisation d’un appareil par système.
• Pour les maisons avec des systèmes plus importants nous recommandons l’emploi de plusieurs unités.
Contacter notre service technique au 1-866-765-1587 pour obtenir des informations de dimensionnement.
GÉNÉRALITÉS
Le purificateur d’air Air+Health™ utilise une technologie recommandée par les médecins, qui sont d’avis que « le
rayonnement ultraviolet, correctement intégré aux systèmes de chauffage, de ventilation et de climatisation, est la
méthode générale de désinfection de l’air la plus prometteuse. »
2
DIMENSIONS ET CHOIX DE L’APPAREIL
Le tableau ci-dessous permet de déterminer le modèle approprié.
INSTALLATION
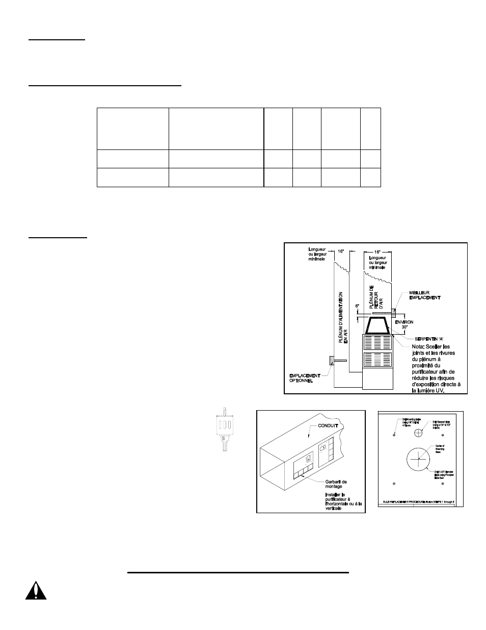
1. Repérer un emplacement approprié en aval du serpentin en A
dans le plénum d’alimentation ou de retour, de préférence en
aval du filtre à air. Pour assurer un effet de «nettoyage» optimal
du serpentin en A, installer le purificateur dans le plénum
d’alimentation, le plus près possible du serpentin. (Voir la Figure
1)
ATTENTION : Étudiez et déterminez l'endroit de l'enroulement de A
avant les trous de forage dans le conduit pour l'unité de montage.
REMARQUE : Pour une installation sur une plaque, se référer au
sac d’accessoires contenant la plaque de montage et les
instructions.
2. Fixer le gabarit de montage sur le conduit d’air, à l’horizontale ou
à la verticale comme le montre la Figure 2. (Laisser le gabarit en
place pour référence ultérieure).
3. Percer des trous de 1/8 po de diamètre aux endroits indiqués sur
le gabarit. (Se référer au gabarit, tel qu’indiqué à la Figure 3).
4. Pratiquer une grande ouverture sur le
gabarit en utilisant une perceuse et la
scie cylindrique fournie. (Se référer au
gabarit, tel qu’indiqué à la Figure 3).
5. À l’aide d’un foret de ¼ po à ½ po, percer
le trou de regard, marqué sur le gabarit.
(Figure 3)
6. Fixer le support du purificateur sur le plénum au moyen
des vis à tôle fournies. (Se référer au gabarit, tel
qu’indiqué à la Figure 3). Ceci doit être serré afin
d'activer construit dans la commande de sécurité.
REMARQUE : NE PAS retirer le gabarit du conduit.
Figure 2
Figure 1
MISE EN GARDE – Ne jamais exposer les yeux ou la peau au rayonnement UV, quelle qu’en soit la source. Une exposition
directe aux rayons UV peut causer des dommages permanents aux yeux ou même la cécité. Ne jamais faire fonctionner le
purificateur d’air Air+Health™ à l’extérieur du plénum. Éviter de toucher à la partie en verre du tube avec les mains.
Figure 3
Scie cylindrique
fournie
