Air Health Air+Health AH-1 User Manual
Page 3

Page 3
Square
Footage
Air+Health™
(For ducts at
least 16” wide)
Volts Watts Amps Hz
Up to
2000
1 120
30
.5
60
4000 2 120
30
.5
60
Notes:
• For homes with multiple systems, we recommend one unit per system.
• For homes with larger applications, multiple units are recommended.
Contact technical support at 1-866-765-1587 for sizing.
Figure 4
SIZING AND SELECTING UNITS
See chart below for determining your homes needs.
INSTALLATION
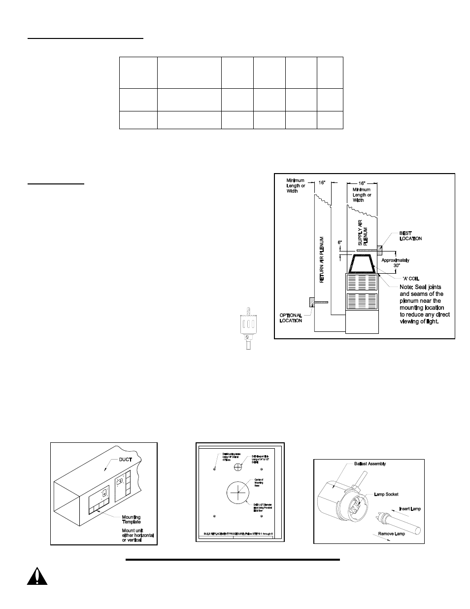
1. Locate a suitable location for the unit downstream from the ‘A’ coil
in the supply plenum or in the return plenum; preferably
downstream from the air filter. For optimum “cleaning” effect on
the ‘A’ coil, mount the unit in the supply plenum as close as
possible to the ‘A’ coil. (See Figure 1)
CAUTION: Investigate and determine the location of the A coil prior to
drilling holes in duct for mounting unit.
NOTE: For duct board installation, refer to enclosed bagged
assembly containing mounting plate and instructions.
2. Apply supplied mounting template to air duct in either a vertical or
horizontal position as shown in Figure 2. (Leave template
mounted to duct for future reference.)
3. Drill 1/8” diameter mounting holes at positions
indicated on template. (Refer to supplied template as
shown in Figure 3)
4. Cut out the large opening on the template using a drill
and the provided hole saw. (Refer to template as
shown in Figure 3)
5. Using a ¼” to ½” drill bit, drill view port hole as
indicated on template. (Figure 3)
6. Mount the Air+Health™ mounting base onto the plenum with the supplied sheet metal screws. (Refer to template as
shown in Figure 3) This must be tight in order to activate the built in safety switch.
NOTE: DO NOT remove template from duct.
7. Install bulb into ballast. Do not handle the bulb with bare hands. Oils on the hands tend to shorten bulb intensity.
(See Figure 4)
Figure 1
WARNING: Never expose eyes or skin to UVC light from any source. Looking directly at the UVC light may cause permanent
eye damage or blindness. Never operate the Air+Health™ Air Purifying System out of the plenum. Avoid touching the
glass portion of the bulb with your hands.
Figure 3
Provided
hole saw
Figure 2
