Air Health Air+Health AH-1 User Manual
Page 11

Page 11
Pies
cuadrados
(metros
cuadrados)
Air+Health™
(Para conductos por
lo menos de 16 pulg.
[406 mm de ancho])
Voltios
Vatios
Amperio
s
Hz
hasta 2000
1
120
30
0.5
60
4000 2
120
30
0.5
60
Notas:
• Para los hogares con varios sistemas, se recomienda el uso de una unidad por cada sistema.
• Para los hogares con aplicaciones grandes, se recomienda el uso de varias unidades. Llame al servicio
de ayuda técnica al 1-866-765-1587 para obtener información de tamaño.
INFORMACIÓN GENERAL
La unidad Air+Health™ utiliza tecnología recomendada por los médicos que declaran que la “radiación ultravioleta, que se
integra de manera debida a los sistemas de calefacción, ventilación y aire acondicionado, es el método de aplicación más
amplia para la desinfección del aire”.
2
TAMAÑO Y SELECCIÓN DE LAS UNIDADES
Consulte la tabla a continuación para determinar las necesidades de su hogar.
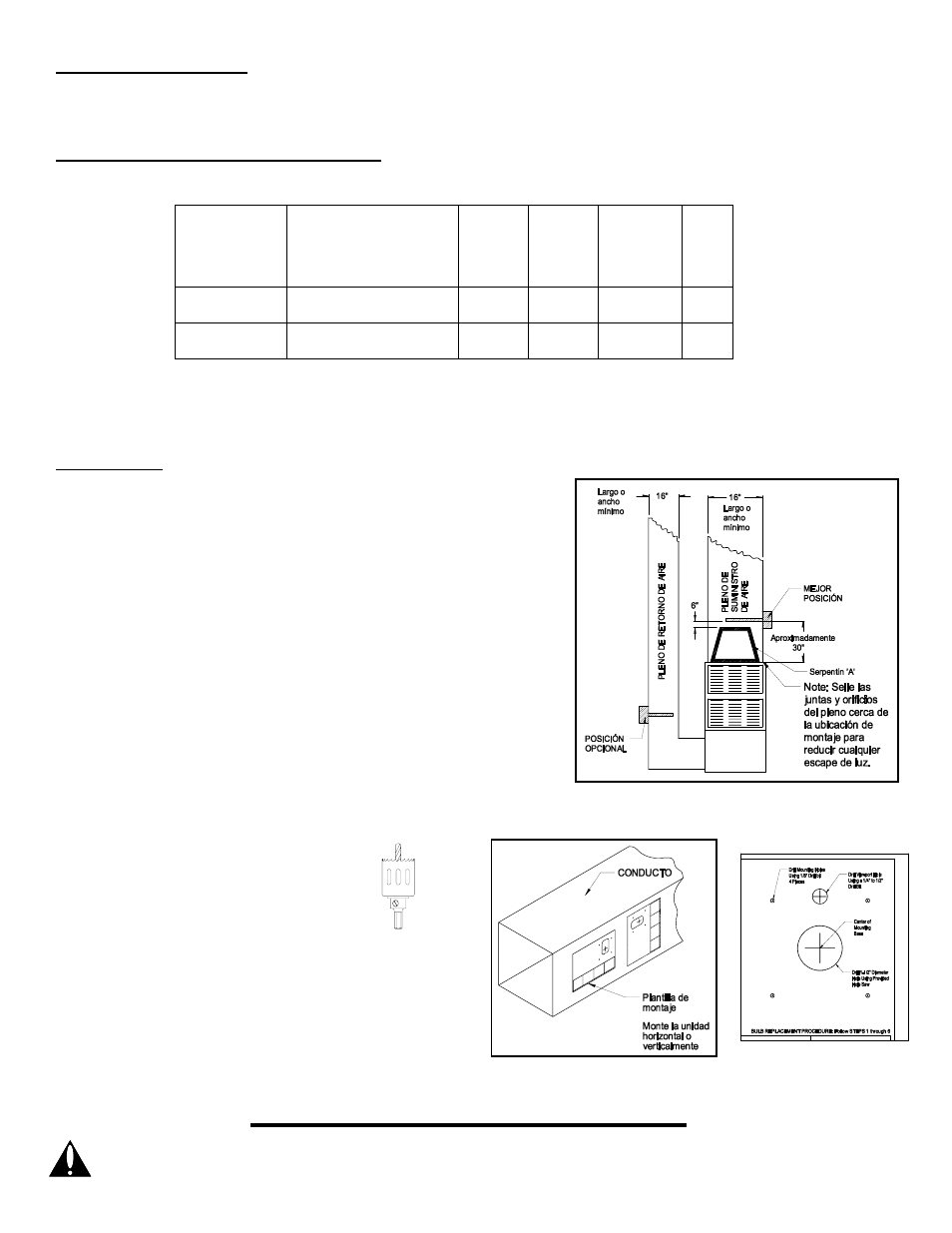
INSTALACIÓN
1. Busque un sitio adecuado para ubicar la unidad, que se encuentre
aguas abajo del serpentín ‘A’ en el pleno de suministro o en el
pleno de retorno; preferiblemente aguas abajo del filtro de aire.
Para obtener el efecto óptimo de “limpieza” del serpentín ‘A’, monte
la unidad en el pleno de suministro, lo más cerca posible al
serpentín ‘A’. (Consulte la figura 1.)
PRECAUCIÓN: Investigue y determine la localización de la bobina de
A antes de los agujeros que perforan en el conducto para la unidad de
montaje.
NOTA: Para realizar la instalación del tablero de conducto, refiérase al
ensamblado incluido en la bolsa que contiene la plantilla de
montaje y las instrucciones.
2. Ponga la plantilla de montaje suministrada en el conducto de aire
en posición vertical u horizontal, como se muestra en la figura 2.
(Deje la plantilla montada en el conducto para futura referencia.)
3. Taladre agujeros de montaje de 1/8 de pulg. de diámetro en los
sitios que indica la plantilla. (Refiérase a la plantilla que aparece en
la figura 3.)
4. Corte una abertura grande en la
plantilla utilizando el taladro y la
sierra proporcionada para
agujeros. (Refiérase a la plantilla
que aparece en la figura 3.)
5. Utilice una broca de ¼ ó ½ pulg.
para taladrar el agujero de la
mirilla, como se indica en la plantilla. (Figura 3.)
6. Ponga la base de montaje Air+Health™ en el pleno,
utilizando los tornillos para hoja metálica
suministrados. (Refiérase a la plantilla que aparece en
la figura 3.) Esto debe ser apretado para activar
construido en interruptor de seguridad.
NOTA:
NO quite la plantilla del conducto
.
Figura 2
Figura 1
ADVERTENCIA: Nunca exponga los ojos o piel a la luz ultravioleta de ninguna fuente. El mirar directamente a la luz
ultravioleta puede lesionar permanentemente los ojos o hasta quedar ciego. Nunca haga funcionar el sistema de
purificación de aire Air+Health™ fuera del pleno. Evite tocar el cristal de la bombilla con las manos.
Figura 3
Sierra para agujeros
proporcionada
