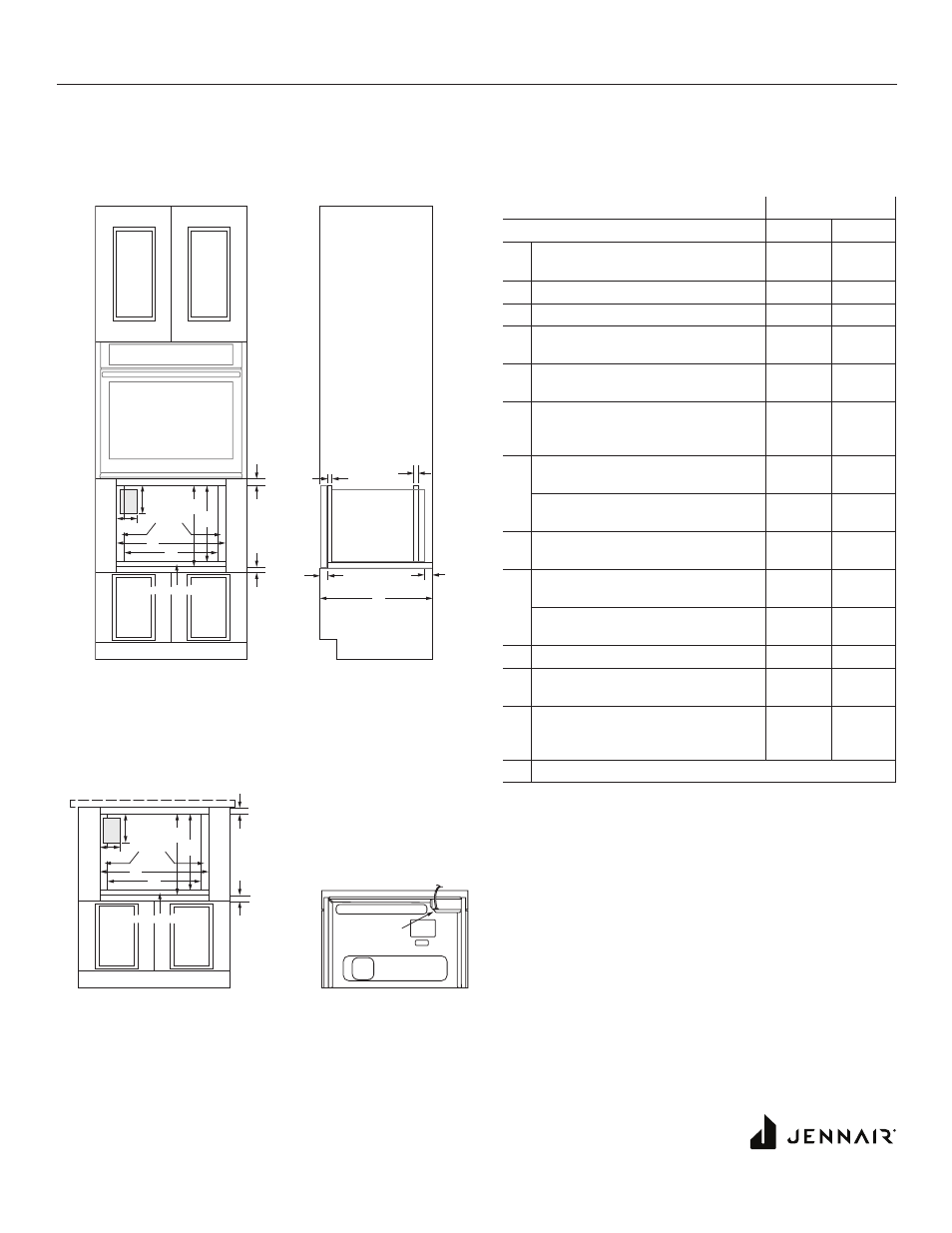
Dimensions de planification détaillées, Tiroir à micro-ondes sous comptoir de jennair, Installation en affleurement jmdfs24jl – 23 – JennAir Rise 24 Inch Under Counter Microwave Drawer Dimension Guide User Manual
Page 6: Po x 15, Po x 24, Po dimensions d’ouverture et de dégagement

TIROIR À MICRO-ONDES SOUS COMPTOIR DE JENNAIR
®
– INSTALLATION EN AFFLEUREMENT
JMDFS24JL – 23
7
/
8
po x 15
3
/
8
po x 24
9
/
16
po
DIMENSIONS D’OUVERTURE ET DE DÉGAGEMENT
DIMENSIONS DE PLANIFICATION DÉTAILLÉES
6 de 6
VUE AVANT – INSTALLATION
SOUS UN FOUR SIMPLE
No DE MODÈLE
JMDFS24JL
po
cm
A Largeur de l’ouverture (min - max)
24
3
/
16
а 24
1
/
2
61,4
а 62,2
B Largeur entre les tasseaux latéraux
22
1
/
8
56,2
C Hauteur de l’ouverture
17
43,2
D Hauteur du haut de l’ouverture
à la plateforme
16
1
/
8
41,0
E Largeur de l’emplacement suggéré
de la prise électrique
4
1
/
2
11,4
F
Tolérance de chevauchement
supérieur Hauteur suggérée de
l’emplacement de la prise électrique
3
7,6
G
Distance minimale de l’ouverture
jusqu’au-dessous du four
2
5,1
Distance minimale de l’ouverture
jusqu’au bas du comptoir
2
5,1
H Distance minimale de l’ouverture
jusqu’au haut de la porte de l’armoire
2
5,1
I
Profondeur minimum de l’ouverture
avec la prise en affleurement
23
1
/
2
59,7
avec prise qui n’est pas en
affleurement
28
71,1
J
Profondeur du tasseau latéral
1
9
/
16
3,9
K Profondeur de l’avant de l’armoire à
l’avant de la plateforme
1
7
/
8
4,8
L
Profondeur de l’arrière du four à
micro-ondes installé à l’arrière
de l’armoire
3
1
/
2
8,9
e
Emplacements recommandés pour la prise électrique
VUE LATÉRALE
SPÉCIFICATIONS ÉLECTRIQUES
L’appareil doit être alimenté par un circuit de 120 V CA à 60 Hz
mis à la terre seulement et protégé par fusible de 15 ou 20 A.
On recommande d’utiliser un disjoncteur temporisé ou un
circuit dédié. Ne pas utiliser de rallonge.
EXIGENCES D’EMPLACEMENT
La structure de support doit être capable de soutenir une
charge de 100 lb (45,4 kg) incluant le four à micro-ondes
et son contenu.
VUE AVANT – INSTALLATION
SOUS UN COMPTOIR
VUE ARRIÈRE
A
B
C
D
e
F
J
D
E
G
H
Tasseau
latéral*
Plateforme du bas
I
L
K
J
A
B
e
D
F
E
G
H
Plateforme du bas
C
D
Tasseau
latéral*
Emplacement de
électrique
l’alimentation
IMPORTANT :
Les spécifications dimensionnelles sont fournies uniquement à des fins de planification.
Ne faire aucune découpe sur la base de cette information.
Se référer au Guide d’installation avant de choisir
une armoire, de vérifier les connexions électriques/au gaz, d’effectuer des découpes ou de commencer l’installation.
Tous les appareils JennAir
®
sont homologués UL, CUL ou CSA.
®
/™ © 2019 JennAir. Tous droits réservés.
W11192706B