20 gn 1/1 – Electrolux 269554 User Manual
Page 7

7
5938 036 01
1e
3
21
32
"
93 mm
13
3
16
"
335 mm
14
3
32
"
358 mm
39
1
8
"
994 mm
6
15
16
"
176 mm
7
7
8
"
Ø
200 mm
C
57
23
32
"
1466 mm
2
29
32
"
74 mm
2
15
32
"
63 mm
2
5
16
"
59 mm
6
15
16
"
176 mm
8
7
32
"
209 mm
5
23
32
"
145 mm
12
13
32
"
315 mm
22 "
559 mm
9
7
32
"
234 mm
3
15
16
"
100 mm
19
11
16
"
500 mm
23
1
16
"
586 mm
3
15
16
"
100 mm
C
B
I
H
N
D
cod. 597848800
7
3
32
"
180 mm
66
1
32
"
1677 mm
70
21
32
"
1795 mm
76
1
16
"
1932 mm
36
15
32
"
926 mm
8
1
16
"
205 mm
5
5
16
"
135 mm
2
3
4
"
70 mm
8
7
32
"
209 mm
22 "
559 mm
12
13
32
"
315 mm
9
7
32
"
234 mm
C
B
H
I
D
N
(A ^)
(C ^)
(A ^)
(B ^)
(A ^)
(B ^)
B
(A ^)
(B ^)
(A ^)
(C ^)
(A ^)
(B ^)
B
USA
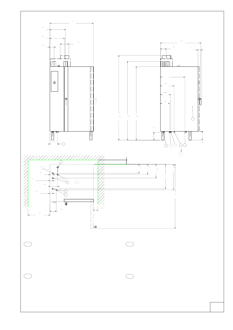
H - Gas connection
ø1"
NPT gasline
I - Power supply cable inlet
B - Water supply connection (0.5- 5 °F)
ø3/4" NPT gasline
C - Water drain connection
ø1"1/4 NPT gasline
N - Steam condens. water connection
ø3/4" NPT gasline
D - Overflow drain pipe (AIR-BREAK)
(Do not connect)
( ^) FUNCTIONAL LEVEL
IT
H - Attacco gas
ø1"
NPT gasline
I - Entrata cavo elettrico
B - Attacco alim. acqua (0,5 - 5 °F)
ø3/4" NPT gasline
C - Collettore scarico acqua
ø1"1/4 NPT gasline
N - Attacco acqua Conden. fumane
ø3/4" NPT gasline
D - Scarico di sicurezza (AIR-BREAK)
(Non collegare)
( ^) LIVELLO FUNZIONALE
CDN
H - Entée gaz
ø1"
NPT gasline
I - Entrée câble électrique
B - Entrée eau (0,5 - 5 °F)
ø3/4" NPT gasline
C - Collecteur évacuation eau
ø1"1/4 NPT gasline
N - Entrée eau Conden.vapeurs
ø3/4" NPT gasline
D - Évacuation de secours (AIR-BREAK) (Ne pas raccorder)
( ^) NIVEAU FONCTIONNEL
ES
H - Conexión de gas
ø1"
NPT gasline
I - Ingreso cable eléctrico
B - Conexión de agua (0,5 - 5 °F)
ø3/4" NPT gasline
C - Colector del desagüe
ø1"1/4 NPT gasline
N - Entrada del agua de condensación
ø3/4" NPT gasline
D - Desagüe de seguridad (AIR-BREAK) (No conectar)
( ^) NIVEL FUNCIONAL
Mod.
:
20 GN 1/1