10 gn 1/1 – Electrolux 269554 User Manual
Page 5

5
5938 036 01
4
17
32
"
115 mm
3
5
16
"
84 mm
13
3
16
"
335 mm
12
1
8
"
308 mm
35
11
32
"
898 mm
5
19
32
"
142 mm
2
7
8
"
73 mm
7
7
8
"
Ø
200 mm
H
C
I
54
23
32
"
1390 mm
5
19
32
"
142 mm
2
7
8
"
73 mm
2
5
32
"
55 mm
2
7
8
"
73 mm
4
17
32
"
115 mm
6
1
4
"
159 mm
17
5
16
"
440 mm
20
5
16
"
516 mm
8
11
16
"
221 mm
3
15
16
"
100 mm
3
15
16
"
100 mm
19
11
16
"
500 mm
C
B
I
H
N
D
cod. 597847300
30
1
2
"
775 mm
29
3
16
"
741.5
mm
68
1
8
"
1730 mm
72
25
32
"
1848.5
mm
78
5
32
"
1985 mm
36
7
32
"
920 mm
5
1
8
"
130 mm
5
5
16
"
135 mm
36
13
16
"
935 mm
2
3
4
"
70 mm
6
1
4
"
159 mm
8
11
16
"
221 mm
17
5
16
"
440 mm
22
27
32
"
580 mm
C
B
H
I
D
N
(A ^)
(C ^)
(A ^)
(B ^)
(A ^)
(B ^)
B
22
27
32
"
580 mm
(A ^)
(C ^)
(A ^)
(B ^)
(A ^)
(B ^)
B
1c
Mod.
:
10 GN 1/1
USA
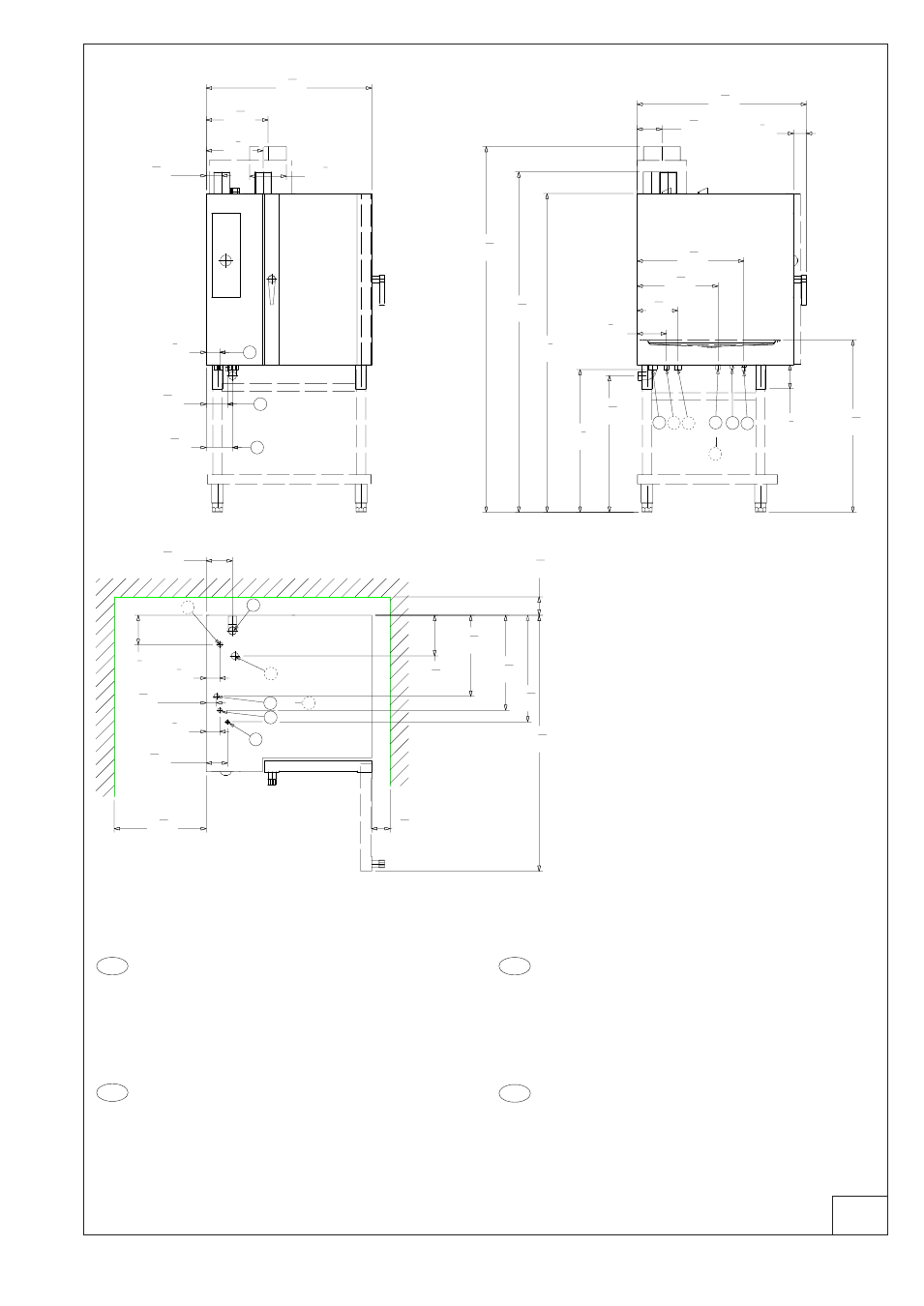
H - Gas connection
ø1/2" NPT gasline
I - Power supply cable inlet
B - Water supply connection (0.5- 5 °F)
ø3/4" NPT gasline
C - Water drain connection
ø1"1/4 NPT gasline
N - Steam condens. water connection
ø3/4" NPT gasline
D - Overflow drain pipe (AIR-BREAK)
(Do not connect)
( ^) FUNCTIONAL LEVEL
IT
H - Attacco gas
ø1/2" NPT gasline
I - Entrata cavo elettrico
B - Attacco alim. acqua (0,5 - 5 °F)
ø3/4" NPT gasline
C - Collettore scarico acqua
ø1"1/4 NPT gasline
N - Attacco acqua Conden. fumane
ø3/4" NPT gasline
D - Scarico di sicurezza (AIR-BREAK)
(Non collegare)
( ^) LIVELLO FUNZIONALE
CDN
H - Entée gaz
ø1/2" NPT gasline
I - Entrée câble électrique
B - Entrée eau (0,5 - 5 °F)
ø3/4" NPT gasline
C - Collecteur évacuation eau
ø1"1/4 NPT gasline
N - Entrée eau Conden.vapeurs
ø3/4" NPT gasline
D - Évacuation de secours (AIR-BREAK) (Ne pas raccorder)
( ^) NIVEAU FONCTIONNEL
ES
H - Conexión de gas
ø1/2" NPT gasline
I - Ingreso cable eléctrico
B - Conexión de agua (0,5 - 5 °F)
ø3/4" NPT gasline
C - Colector del desagüe
ø1"1/4 NPT gasline
N - Entrada del agua de condensación
ø3/4" NPT gasline
D - Desagüe de seguridad (AIR-BREAK) (No conectar)
( ^) NIVEL FUNCIONAL