6 gn 2/1 – Electrolux 269554 User Manual
Page 4

4
5938 036 01
4
21
32
"
118 mm
3
19
32
"
91 mm
13
3
16
"
335 mm
14
11
32
"
364 mm
47
9
16
"
1208 mm
5
23
32
"
145 mm
2
15
32
"
62.5
mm
7
7
8
"
Ø
200 mm
H
C
I
67
17
32
"
1715 mm
3
1
16
"
77.5
mm
3
1
16
"
77.5
mm
2
15
32
"
62.5
mm
4
21
32
"
118 mm
11
27
32
"
301 mm
22
27
32
"
580 mm
26
5
16
"
668 mm
14
1
4
"
362 mm
3
15
16
"
100 mm
3
15
16
"
100 mm
19
11
16
"
500 mm
28
13
16
"
732 mm
C
B
I
H
N
D
cod. 597847800
30
1
2
"
775 mm
29
3
16
"
741 mm
58
9
32
"
1480 mm
62
29
32
"
1598 mm
68
5
16
"
1735 mm
42 "
1067 mm
5
1
8
"
130 mm
5
5
16
"
135 mm
36
13
16
"
935 mm
2
3
4
"
70 mm
11
27
32
"
301 mm
14
1
4
"
362 mm
22
27
32
"
580 mm
28
13
16
"
732 mm
C
B
H
I
D
N
(A ^)
(C ^)
(A ^)
(B ^)
(A ^)
(B ^)
B
(A ^)
(B ^)
(A ^)
5
23
32
"
145 mm
(C ^)
(A ^)
(B ^)
B
1b
USA
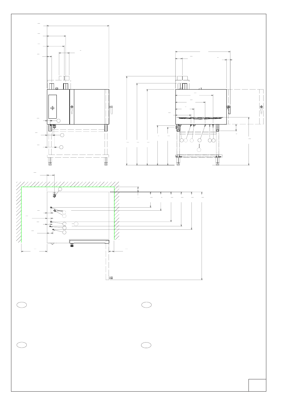
H - Gas connection
ø1/2" NPT gasline
I - Power supply cable inlet
B - Water supply connection (0.5- 5 °F)
ø3/4" NPT gasline
C - Water drain connection
ø1"1/4 NPT gasline
N - Steam condens. water connection
ø3/4" NPT gasline
D - Overflow drain pipe (AIR-BREAK)
(Do not connect)
( ^) FUNCTIONAL LEVEL
IT
H - Attacco gas
ø1/2" NPT gasline
I - Entrata cavo elettrico
B - Attacco alim. acqua (0,5 - 5 °F)
ø3/4" NPT gasline
C - Collettore scarico acqua
ø1"1/4 NPT gasline
N - Attacco acqua Conden. fumane
ø3/4" NPT gasline
D - Scarico di sicurezza (AIR-BREAK)
(Non collegare)
( ^) LIVELLO FUNZIONALE
CDN
H - Entée gaz
ø1/2" NPT gasline
I - Entrée câble électrique
B - Entrée eau (0,5 - 5 °F)
ø3/4" NPT gasline
C - Collecteur évacuation eau
ø1"1/4 NPT gasline
N - Entrée eau Conden.vapeurs
ø3/4" NPT gasline
D - Évacuation de secours (AIR-BREAK) (Ne pas raccorder)
( ^) NIVEAU FONCTIONNEL
ES
H - Conexión de gas
ø1/2" NPT gasline
I - Ingreso cable eléctrico
B - Conexión de agua (0,5 - 5 °F)
ø3/4" NPT gasline
C - Colector del desagüe
ø1"1/4 NPT gasline
N - Entrada del agua de condensación
ø3/4" NPT gasline
D - Desagüe de seguridad (AIR-BREAK) (No conectar)
( ^) NIVEL FUNCIONAL
Mod.
:
6 GN 2/1