Elkay ERS1-1D User Manual
Installation / care / use manual, Operation of quick connect fittings

96703C (Rev. G) - 5/99)
ERS1-1D/2D TRS1-1D/2D EWC100
MODELS: ERS1-1D/2D TRS1-1D/2D EWC100
Refrigeration Packages
Installation / Care / Use Manual
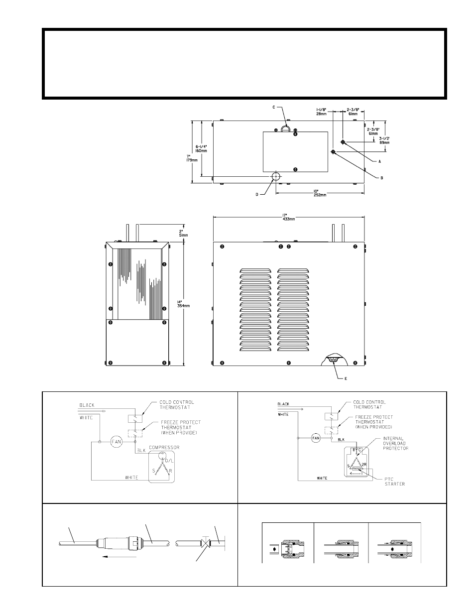
LEGEND
A = 1/4" O.D. TUBE WATER OUTLET
B = 1/4" O.D. TUBE WATER INLET
C = TEMPERATURE ADJUSTMENT
D = ELECTRICAL
E = TANK DRAIN
TUBE IS SECURED
IN POSITION
SIMPLY PUSH IN
TUBE TO ATTACH
PUSH IN COLLET
TO RELEASE TUBE
PUSHING TUBE IN BEFORE
PULLING IT OUT HELPS TO
RELEASE TUBE
OPERATION OF QUICK CONNECT FITTINGS
1/4" O.D. TUBE
WATER INLET
TO COOLER
NOTE: WATER FLOW
DIRECTION
SERVICE STOP
(NOT FURNISHED)
BUILDING
WATER INLET
3/8" O.D. UNPLATED COPPER TUBE
CONNECT COLD WATER SUPPLY
115V WIRING DIAGRAM
220/240V WIRING DIAGRAM
