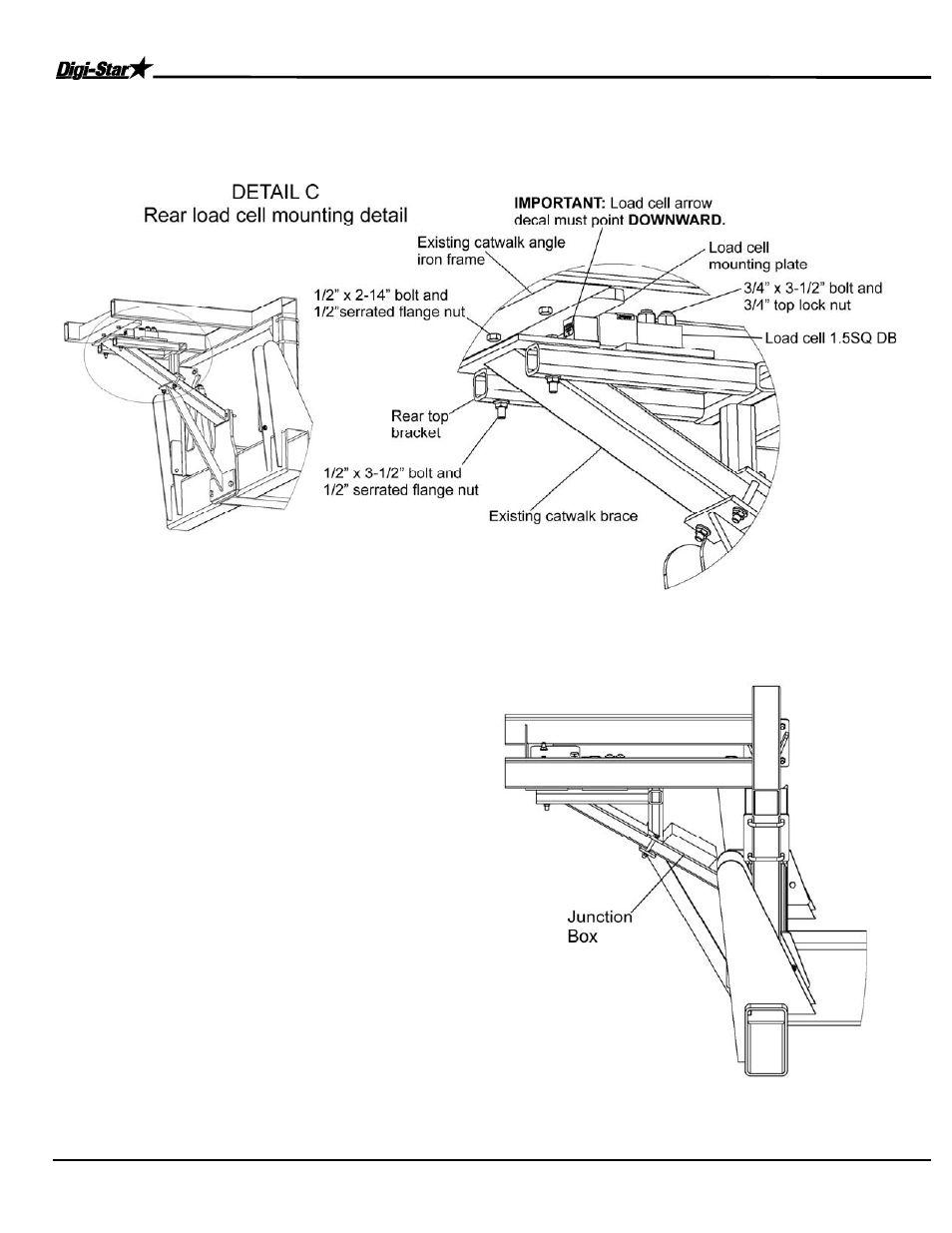
Rear scale mount components, Junction box – Digi-Star Case IH 1250 - 12/16/24 User Manual
Page 8

Scale Kit Mounting Installation – 12, 16 Row
6
Case IH Planter Scale
D3870-US Rev B
Rear Scale Mount Components
Junction Box
•
Clean the area thoroughly and let dry.
•
Peel the adhesive tape off and press on.
Press firmly for at least 30 seconds.
•
Run the wires from the weigh bars in a safe
spot where they cannot get pinched or
rubbed. If possible run the wires along with
other wires or hoses on the planter.
•
Mount the indicator on the rear catwalk
tubing where it is most convenient. Make
sure wires are protected from being
pinched or rubbed.
See also other documents in the category Digi-Star Equipment:
- ERM-2.4 (11 pages)
- Analog Output EZIII (8 pages)
- ICP 300 (14 pages)
- DataLink (11 pages)
- DataLink (39 pages)
- Cab Control 2.4 (10 pages)
- RD 4000 (4 pages)
- RD 440 (4 pages)
- RD 2500 (5 pages)
- SLC 2400 (22 pages)
- RD 2400 (4 pages)
- Cab Control 400 (9 pages)
- DataKey Docking Station USB Drivers (2 pages)
- Data Downloader (DDL) (3 pages)
- EZ2400 (29 pages)
- EZ2500 (26 pages)
- EZ3400VL (33 pages)
- EZ 3600 Manual DataKey (50 pages)
- EZ3400(V) (40 pages)
- EZ3400(V) (43 pages)
- EZ400 (29 pages)
- EZ 3500 Operators Manual (22 pages)
- EZ 3600 USB Manual (52 pages)
- GT400 (26 pages)
- EZ 4600 Manual DataKey (51 pages)
- EZ 4600 Manual USB (53 pages)
- GT460 (48 pages)
- NT 460 (45 pages)
- GT465 (39 pages)
- SW2600EID (46 pages)
- Stockweigh 300 (23 pages)
- SW300 (17 pages)
- ST 3400 (46 pages)
- SW600 (24 pages)
- StockWeigh 550 EID (38 pages)
- SW4600EID (45 pages)
- CC400 (9 pages)
- TST7600 with TMR Tracker (51 pages)
- AGCO - White 8531 (14 pages)
- Case IH 1260 – 32/36 (12 pages)
- Case IH 1260 – 32/36 (12 pages)
- Diet Manager Set-up & User Guide (17 pages)
- Downloader Module (7 pages)
- Diet Manager Full Guide (28 pages)