Installation, Flush glass, Flush louvers – Regency Energy U21 Small Gas Insert User Manual
Page 21

Regency
®
E21-3 Gas Fireplace Insert
21
INSTALLATION
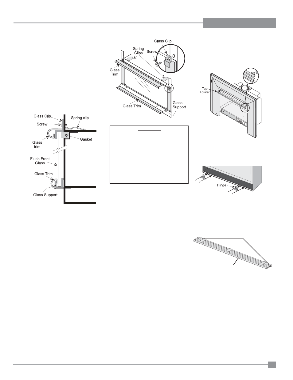
FLUSH GLASS
1) Install
the
bottom glass trim onto the glass
support.
2) Slide the glass into the bottom glass trim
and secure with the glass clips using the 2
phillips head screws at the top.
3) Slide the top glass trim by sliding under the
two spring clips.
Note: To re-install the glass, reverse the
procedure.
WARNING
The use of substitute glass will
void all product warranties.
Do not operate the appliance if the
glass panel(s) are removed, cracked
or broken. Replacement of the glass
panel(s) should be done by a qualifi ed
service person.
FLUSH LOUVERS
1) The Top Louver is held in place by Spring
Clips. Push into place as shown.
2) Install the Spring Hinges on the left and right
side of the bottom of the Firebox using 2
screws per hinge.
3) Place the Bottom Louver near the hinge. Flip
hinge over the Bottom Louver and secure
using 3 screws.
Bottom Louver
Hinge
Location
- Alterra CI1200 Small Wood Insert (32 pages)
- Alterra CS1200 Small Wood Stove (32 pages)
- Alterra CS2400 Medium Wood Stove (32 pages)
- Bellavista B36XTCE Medium Gas Fireplace (72 pages)
- Bellavista B36XTE Medium Gas Fireplace (72 pages)
- Bellavista B41XTCE Large Gas Fireplace (68 pages)
- Bellavista B41XTE Large Gas Fireplace (64 pages)
- CI2600 Large Wood Insert (40 pages)
- Classic C34 Small Gas Stove (44 pages)
- Classic F3100 Large Wood Stove (28 pages)
- Classic F2400 Medium Wood Stove (28 pages)
- Classic F5100 Extra Large Wood Stove (36 pages)
- Classic H2100 Hearth Heater Wood Insert (24 pages)
- Classic I1200 Small Wood Insert (24 pages)
- Classic I2400 Medium Wood Insert (20 pages)
- Classic R90 Large Wood Fireplace (Canadian Edition) (40 pages)
- Classic R90 Large Wood Fireplace (US Edition) (36 pages)
- Energy U31 Medium Gas Insert (36 pages)
- Energy U32 Medium Gas Insert (44 pages)
- Excalibur E33 Large Gas Insert (44 pages)
- Excalibur P90 Medium Gas Fireplace (56 pages)
- Greenfire GF55 Medium Pellet Insert (16 pages)
- Hampton GC60 Large Pellet Stove OWNER'S MANUAL (18 pages)
- Hampton GC60 Large Pellet Stove TECHNICAL MANUAL (32 pages)
- Hampton GCI60 Large Pellet Insert OWNER'S MANUAL (18 pages)
- Hampton GCI60 Large Pellet Insert TECHNICAL MANUAL (34 pages)
- Hampton H15 Small Gas Stove (48 pages)
- Hampton H200 Medium Wood Stove (36 pages)
- Hampton H27 Medium Gas Stove (48 pages)
- Hampton H300 Large Wood Stove (36 pages)
- Hampton H35 Large Gas Stove (48 pages)
- Hampton HI200 Small Wood Insert (24 pages)
- Hampton HI300 Medium Wood Insert (32 pages)
- Horizon HZ30E Small Gas Fireplace (64 pages)
- Horizon HZ33CE Small Gas Fireplace (60 pages)
- Horizon HZ40E Medium Gas Fireplace (68 pages)
- Horizon HZ42STE Medium Gas Fireplace (60 pages)
- Horizon HZ54E Large Gas Fireplace (68 pages)
- Horizon HZ965E Large Gas Fireplace (68 pages)
- Horizon HZI234E Small Gas Insert (52 pages)
- Horizon HZI390EB Medium Gas Insert (60 pages)
- Horizon HZI540EB Large Gas Insert (56 pages)
- Horizon HZO42 Outdoor Gas Fireplace (44 pages)
- Liberty L234 Small Gas Insert (44 pages)