Installation – Regency Energy U21 Small Gas Insert User Manual
Page 10

10
Regency
®
E21-3 Gas Fireplace Insert
INSTALLATION
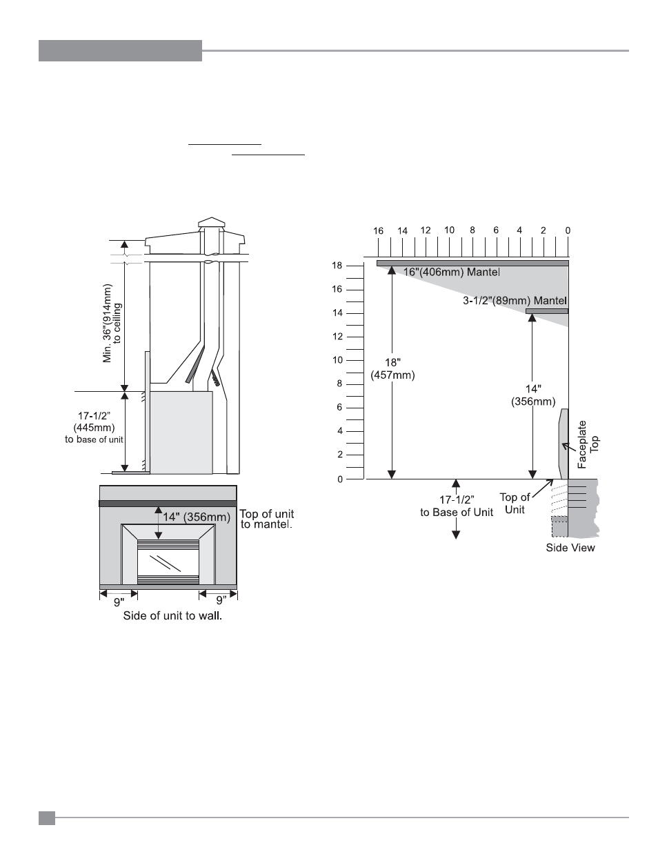
CLEARANCES TO COMBUSTIBLES
aaa
aaa
aaa
aaa
aaa
aaa
aaa
aaa
aaa
aaa
aaa
aaa
aaa
aaa
aaa
aaa
aaa
aaa
aaa
aaaaa
aaaaa
aaaaa
aaaaa
aaaaa
aaaaa
aaaaa
aaaaa
aaaaa
aaaaa
aaaaa
aaaaa
The minimum clearance from the side of the appliance to a combustible
side wall is 9 inches (229mm). The minimum clearance from the top of
the louver to a combustible mantel is 14 inches (356mm). The minimum
height from the top of the louver to the ceiling is 36 inches (914mm).
Note: A non-combustible mantel may be installed at a lower height
if the framing is made of metal studs covered with a non-
combustible board.
See also other documents in the category Regency Radiators:
- Alterra CI1200 Small Wood Insert (32 pages)
- Alterra CS1200 Small Wood Stove (32 pages)
- Alterra CS2400 Medium Wood Stove (32 pages)
- Bellavista B36XTCE Medium Gas Fireplace (72 pages)
- Bellavista B36XTE Medium Gas Fireplace (72 pages)
- Bellavista B41XTCE Large Gas Fireplace (68 pages)
- Bellavista B41XTE Large Gas Fireplace (64 pages)
- CI2600 Large Wood Insert (40 pages)
- Classic C34 Small Gas Stove (44 pages)
- Classic F3100 Large Wood Stove (28 pages)
- Classic F2400 Medium Wood Stove (28 pages)
- Classic F5100 Extra Large Wood Stove (36 pages)
- Classic H2100 Hearth Heater Wood Insert (24 pages)
- Classic I1200 Small Wood Insert (24 pages)
- Classic I2400 Medium Wood Insert (20 pages)
- Classic R90 Large Wood Fireplace (Canadian Edition) (40 pages)
- Classic R90 Large Wood Fireplace (US Edition) (36 pages)
- Energy U31 Medium Gas Insert (36 pages)
- Energy U32 Medium Gas Insert (44 pages)
- Excalibur E33 Large Gas Insert (44 pages)
- Excalibur P90 Medium Gas Fireplace (56 pages)
- Greenfire GF55 Medium Pellet Insert (16 pages)
- Hampton GC60 Large Pellet Stove OWNER'S MANUAL (18 pages)
- Hampton GC60 Large Pellet Stove TECHNICAL MANUAL (32 pages)
- Hampton GCI60 Large Pellet Insert OWNER'S MANUAL (18 pages)
- Hampton GCI60 Large Pellet Insert TECHNICAL MANUAL (34 pages)
- Hampton H15 Small Gas Stove (48 pages)
- Hampton H200 Medium Wood Stove (36 pages)
- Hampton H27 Medium Gas Stove (48 pages)
- Hampton H300 Large Wood Stove (36 pages)
- Hampton H35 Large Gas Stove (48 pages)
- Hampton HI200 Small Wood Insert (24 pages)
- Hampton HI300 Medium Wood Insert (32 pages)
- Horizon HZ30E Small Gas Fireplace (64 pages)
- Horizon HZ33CE Small Gas Fireplace (60 pages)
- Horizon HZ40E Medium Gas Fireplace (68 pages)
- Horizon HZ42STE Medium Gas Fireplace (60 pages)
- Horizon HZ54E Large Gas Fireplace (68 pages)
- Horizon HZ965E Large Gas Fireplace (68 pages)
- Horizon HZI234E Small Gas Insert (52 pages)
- Horizon HZI390EB Medium Gas Insert (60 pages)
- Horizon HZI540EB Large Gas Insert (56 pages)
- Horizon HZO42 Outdoor Gas Fireplace (44 pages)
- Liberty L234 Small Gas Insert (44 pages)