Search
Directory
Brands
Clarus Environmental manuals
Pumps
Centrifugal STEP Systems
Manual
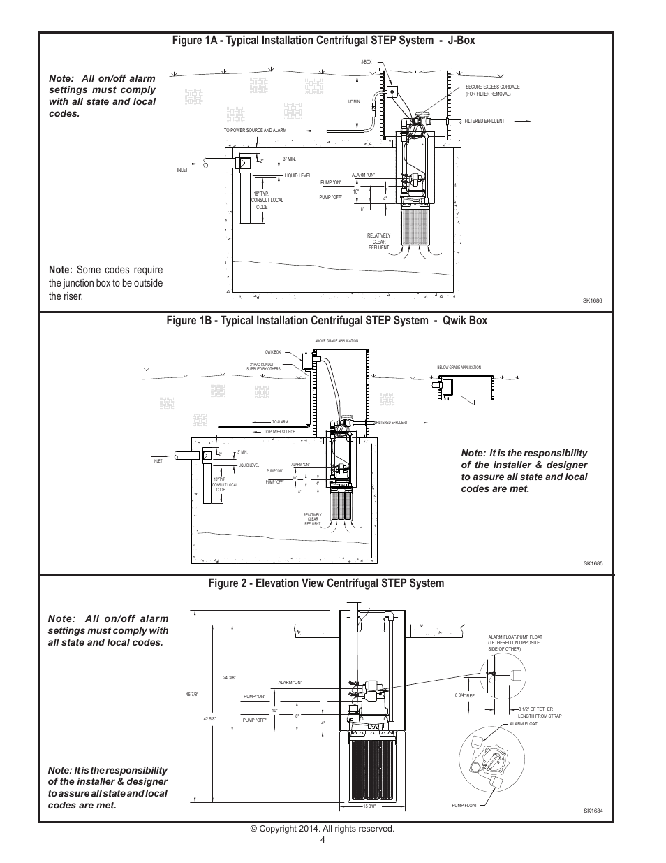
Figure 2 - elevation view centrifugal step system – Clarus Environmental Centrifugal STEP Systems User Manual
Page 4
Text mode
Original mode
Figure 2 - elevation view centrifugal step system | Clarus Environmental Centrifugal STEP Systems User Manual | Page 4 / 8
Pages:
1
2
3
4
5
6
…
8
wrong Brand
wrong Model
non readable
See also other documents in the category Clarus Environmental Pumps:
Centrifugal STEP Vaults
(1 page)
Turbine STEP Systems
(12 pages)
Centrifugal Effluent Pumps (N51,N142)
(4 pages)
Turbine Effluent Pumps
(8 pages)