Bcx-14g stacked on a zephaire-g plus, Dimensions, Gas supply – Blodgett ZEPHAIRE-G PLUS User Manual
Page 2: Water supply, Power supply, Minimum entry clearance, Shipping information

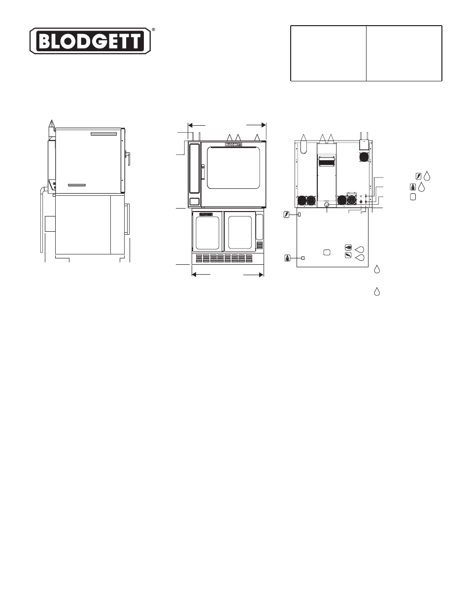
BCX-14G STACKED ON A ZEPHAIRE-G PLUS
Printed in U.S.A.
NOTE: FOR COMMERCIAL USE ONLY
NOTE: The company reserves the right to make substitutions of components without prior notice
APPROVAL/STAMP
P/N 50455 Rev S (3/12)
DIMENSIONS:
Product clearance
6” from combustible and non-combustible
construction. 12” on left side if not on casters.
Additional Height:
6” adjustable legs
6-7/8” - 8” (174.6-203.2mm)
GAS SUPPLY:
BCX-14G
Zephaire G Plus
Connection:
3/4” NPT
3/4” NPT
Inlet Pressure:
Natural
7.0” W.C.
7.0” W.C. minimum
10.5” W.C. maximum
Propane
14.0” W.C.
10.05” W.C. minimum
13.0” W.C. maximum
Manifold Pressure:
Natural
3.5 W.C.
3.5 W.C.
Propane
10.0 W.C.
10.0 W.C.
Maximum Input:
115,000 BTU/hr
60,000 BTU/hr
WATER SUPPLY (
BCX-14G only
):
TDS: < 100 ppm
Hardness: 80-120 ppm pH: 7.0 - 8.0
Chlorides: < 30 ppm Chlorine: 0 ppm
30(min)-50(max) PSI
140°F (60°C) avg. drain temp.
2” drain connection
3/4” garden hose cold water
Appliance is to be installed with backflow protection in accordance
with Federal, State or Local codes.
POWER SUPPLY:
BCX-14G:
120VAC, 20 amp, Nema 5-20R dedicated receptacle
Zephaire G Plus: 115 VAC, 6 amp, 1 phase, 60 Hz., 2-wire with ground
6’ (1.8m) electric cord set furnished.
Both units:
Each unit requires a dedicated circuit.
Blodgett recommends a Pass & Seymour, model 2095, GFCI
for these ovens.
MINIMUM ENTRY CLEARANCE:
BCX-14G
Zephaire G Plus
Uncrated
33” (838mm)*
32-1/16” (814mm)
Crated
42” (1066.8mm)
37-1/2” (953mm)
* after adjustment of flue brackets
SHIPPING INFORMATION:
Approx. Weight:
BCX-14G 645 lbs. (293 kg)
Zephaire G Plus 640 lbs. (290 kg)
Crate sizes (per section):
BCX-14G
44.5” H x 42” W x 54.25” D (1130 x 1067 x 1378mm)
Zephaire G Plus 37-1/2” (952mm) x 43-1/2” (1105mm) x 52” (1321mm)
DIMENSIONS ARE IN INCHES (MM)
69.03 (1753)
65 (165)
41.19” (1021)
0(0)
32 (813)
38.25 (972)
0 (0)
3 (76)
39.88 (1013)
46.87* (1190)
Customer Supplied Drain
*76.06 (1932) overall depth
with combi door open 90°
UTILITY CONNECTIONS
0 (0)
2.91 (74)
5.65 (144)
1.56 (40)
3.34 (85)
5.84(148)
23.59 (599)
F
U
D
F
U
F
U
Unfiltered Water -
Condensate, cold only
Filtered Water -
Boiler, hot or cold
D
BLODGETT OVEN COMPANY
www.blodgett.com
44 Lakeside Avenue, Burlington, VT 05401 • Phone: (802) 658-6600 • Fax: (802) 864-0183