Axw-avr, Kbc: fpvb1-ab1-ib2-sr – Aiphone AXW-AVR User Manual
Page 10

V1
A+ A- GND A+ A- GND
AUDIO 1 AUDIO 2
C1 C2 C3 C4
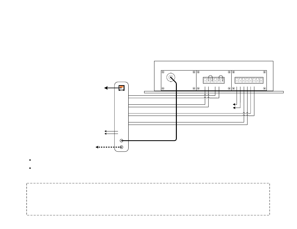
CONFIGURATION DIAGRAM:
AXW-AVT / AXW-AVR with KBC Networks (FPVB1-AB1-IB2-ST, FPVB1-AB1-IB2-SR), 1 of 2
Pg. 17
Pg. 18
To AX-CEU
(Door Release Output)
Normally Open contact for remote device activation
(i.e. video switcher, DVR, etc.)
Composite Video Output
(for CCTV monitor, DVR, etc.)
Configuration Notes (2 of 2):
1. Connect the Call In / Call Out and Audio In / Audio Out connections on the AXW-AVR to the terminal block of the
AFI MR-1890, as shown. For detailed terminal definitions, consult the AFI MR-1890 installation sheet.
2. Connect the AXW-AVR ‘CEU’ connection to an unused Door station input on the AX-CEU and ensure that the
AX-CEU has been programmed to accept a video door station on that input (see Pg. 2).
3. The RELAY output on the AXW-AVR
provides a Normally Open dry contact
output whenever the door station
connection is active. This can be used to
activate any device local to the AXW-
AVT (DVR trigger, video switcher
activation, local call indication, etc.).
Application Considerations:
Power supply connections to the KBC fiber modules are not shown, and are dictated by the mounting method chosen (standalone, rack mount, etc.). Contact KBC
for available options.
AXW-AVT / AXW-AVR should be mounted as close as possible to their corresponding KBC fiber modules. Avoid mounting units near high voltage AC devices, or
other sources of inductive noise.
Please Note:
Only information pertaining to the connection and operation of the AXW-AVT / AXW-AVR and listed 3
rd
party devices interfacing with it are included here. Aiphone is not
responsible for attempts to connect the AXW-AVT / AXW-AVR to untested 3
rd
party transmission hardware. Consult the installation manual for the 3
rd
party device being utilized
for further information regarding physical mounting, base functionality, power requirements, etc. For the most up-to-date compatibility information, please consult http://
www.aiphone.com or contact Aiphone Technical Support.
For complete AX system installation, wiring, and programming information, please consult the AX Installation Manual (included on CD with AX Central Exchange Unit, or
available at http://www.aiphone.com).
CEU
AUDIO IN
+
-
AUDIO OUT
+
-
CALL IN
+
-
CALL OUT
+
-
RELAY
NO
NO
VIDEO IN
VIDEO OUT
AXW-AVR
To AX-CEU
(Door Input)
KBC: FPVB1-AB1-IB2-SR
