Warning, Mounting pad installation – Controlled Products Systems Group HSLG-111 User Manual
Page 5

HSLG Slide Gate Operator Installation Guide
- 3 -
P1220 Revision X8 6-22-2011
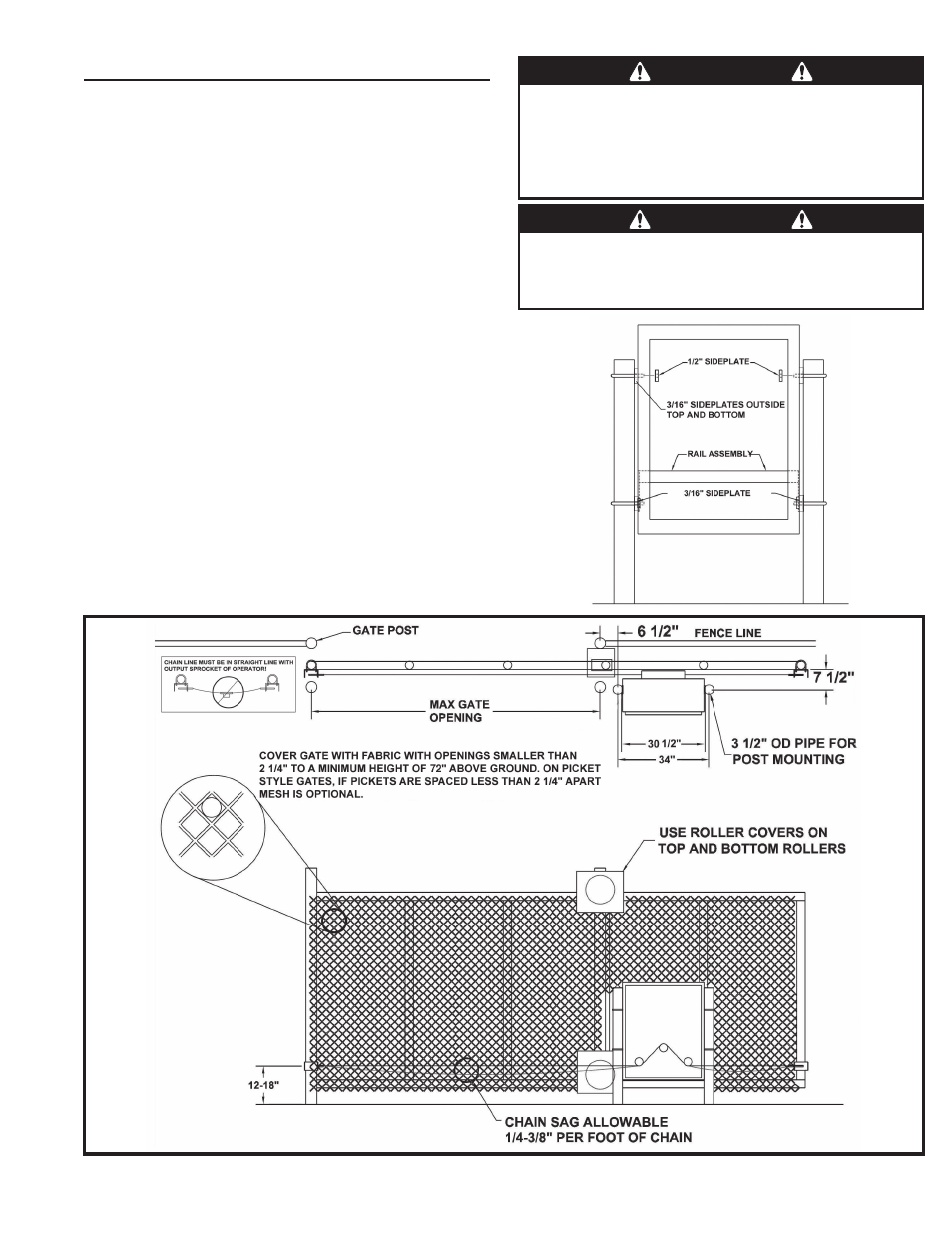
Mounting Pad Installation
The gate operator mounts bolted to posts secured in
concrete footings. The posts support the operator and
prevent it from moving during operation. For optional pad
mounting instructions, see Linear drawing #2700-360.
Gate Preparation
Before installing, make sure the gate rolls or slides freely,
and that all exposed rollers are properly covered. The gate
must be covered with fabric with openings no larger than
2-1/4” in size, to a minimum height of 72” above ground
level. On picket-style gates, if pickets are spaced less than
2-1/4” apart, mesh is optional.
Mounting Specifi cations
Use two 3 - 3-1/2” OD galvanized posts and secure with
concrete footings as shown, length to be determined by
local codes, frost line depth and soil conditions.
Attach the operator with the U-bolts, side plates and
hardware provided. Four 3/16” side plates go on the outside
top and bottom, two 1/2” side plates go on the inside top,
and two 3/16” side plates go on the inside bottom (see the
illustration at right).
To assemble the drive chain and gate brackets, refer to
Page 4. Make sure that the chain sag does not exceed
recommended sizes and that the chain does not come into
contact with the moving parts of the gate or ground.
Figure 2. Post Mounting Specifi cations
WARNING
The operator is intended for installation only on gates used for
vehicles. Pedestrians must be supplied with a separate access
opening. The pedestrian access opening shall be designed to
promote pedestrian usage. Locate the gate such that persons
will not come into contact with the vehicular gate during the
entire path of travel of the vehicular gate.
WARNING
The gate must be installed in a location so that enough
clearance is supplied between the gate and adjacent
structures when opening and closing to reduce the risk of
entrapment.
Figure 1. Side
Plate Installation
