Directory
Brands
Dexter Laundry manuals
Dryers
T-30 (On-Premise)
Manual

Dexter Laundry T-30 (On-Premise) User Manual

Page 5

  • Text mode
  • Original mode
background image

- 5 -


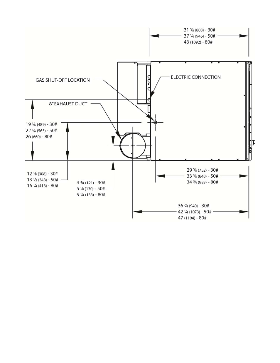
DRYER DIMENSIONS- FIGURE 1C

Pages: 1 … 3 4 5 6 7 … 22
  • wrong Brand
  • wrong Model
  • non readable
See also other documents in the category Dexter Laundry Dryers:
  • DDAD30HC-59 Series Dryers (24 pages)
  • T-80 Non-reversing (On-Premise) (22 pages)
  • T-120 (On-Premise) (22 pages)
  • T-50X2 EXPRESS (Commercial) (13 pages)
  • T-30X2 EXPRESS - 60 Hz Gas (On-Premise) (23 pages)
  • T-80 Reversing (On-Premise) (25 pages)
  • T-30X2 EXPRESS - Electric (On-Premise) (23 pages)
  • SWD EXPRESS - Dryer (On-Premise) (13 pages)
  • T-50 (On-Premise) (17 pages)
  • T-30X2 EXPRESS (Commercial) (13 pages)
  • T-50X2 EXPRESS (On-Premise) (11 pages)
  • T-80 (Commercial) (15 pages)
  • SWD EXPRESS - Washer (On-Premise) (17 pages)
Home Brands Popular manuals Recently added
Manuals Directory

© 2012–2025, azmanual.top
All rights reserved.