Directory
Brands
Thermador manuals
Refrigerators
KBUDT4865E
Manual

Thermador KBUDT4865E User Manual

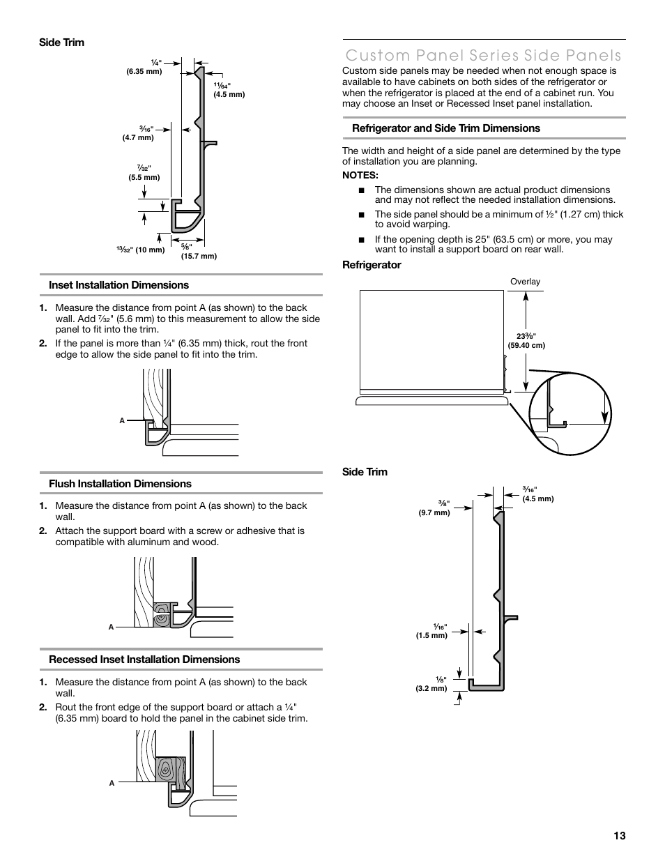
Page 13

  • Text mode
  • Original mode
Thermador KBUDT4865E User Manual | Page 13 / 68 Thermador KBUDT4865E User Manual | Page 13 / 68
Pages: 1 … 11 12 13 14 15 … 68
  • wrong Brand
  • wrong Model
  • non readable
This manual is related to the following products:
  • KBUDT4875E KBUIT4865E KBUIT4265E KBUIT4275E KBUIT4855E KBUDT4855E KBUIT4255E KBUDT4255E KBUIT4265E KBUDT4265E KBUIT4275E KBUDT4275E KBUIT4855E KBUDT4855E KBUIT4865E KBUDT4865E KBUIT4875E 2327570A KBUDT4275E KBUDT4265E KBUDT4255E KBUIT4875E
See also other documents in the category Thermador Refrigerators:
  • T36IB (67 pages)
  • KBUIT4250A (64 pages)
  • KBUDT4850A (60 pages)
  • Bottom Freezer (3 Door) (93 pages)
  • KBURT3665E (48 pages)
  • KBURT3671A (48 pages)
  • KBURT3675E (60 pages)
  • T24IW (42 pages)
  • T30IR (44 pages)
  • BOTTOM FREEZER 9000189698 (88 pages)
  • T24IR (64 pages)
  • T36IB70NSP (104 pages)
  • T24IW EN (60 pages)
Home Brands Popular manuals Recently added
Manuals Directory

© 2012–2025, azmanual.top
All rights reserved.