System interconnection wires and ground wire, Wiring on the ceiling panel, Remote control wiring – Toshiba Carrier RAV-SP180UT-UL EN User Manual
Page 22: Wiring diagram, Caution

Toshiba
– 21 –
4-way Air Discharge Cassette Type
Installation Manual
System interconnection wires
and ground wire
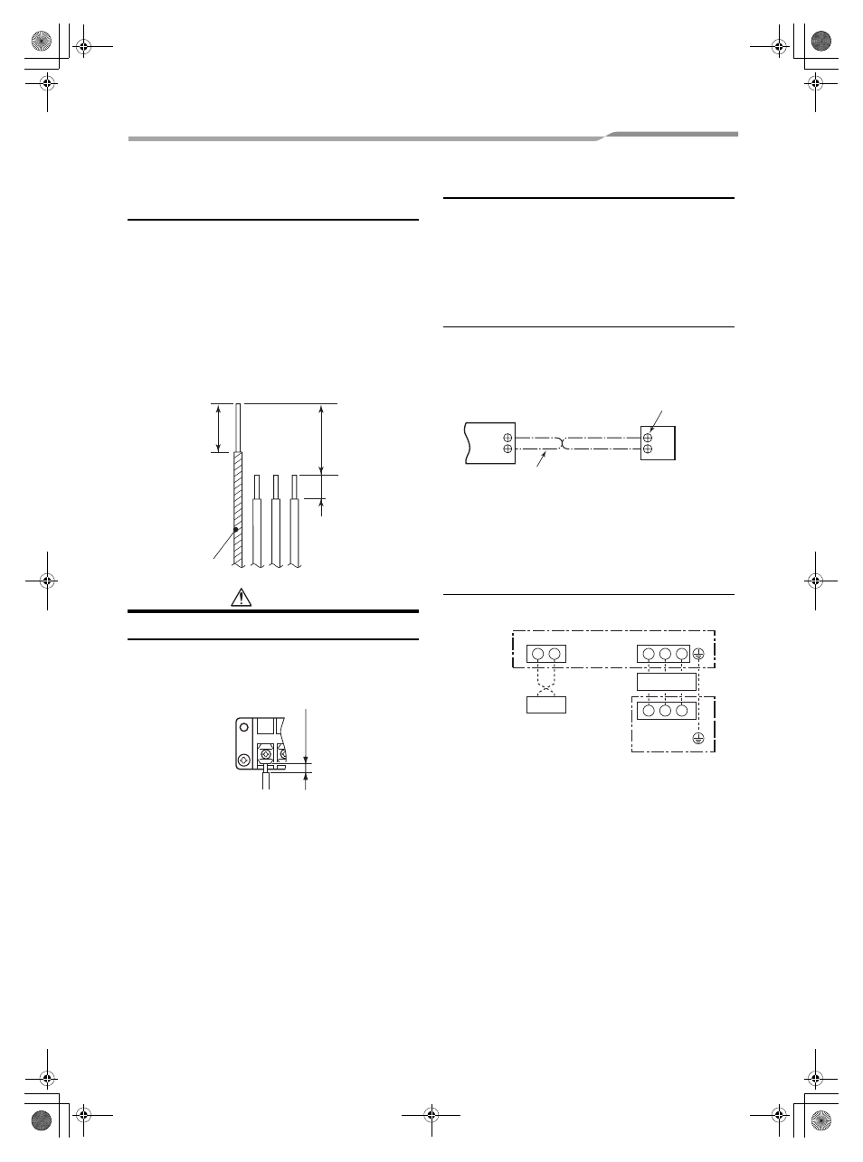
1. Strip the wire ends.
System interconnection wire : 0.4” (10 mm)
Ground wire : 0.8” (20 mm)
2. Match the wire colors with the terminal numbers on
the indoor and outdoor units’ terminal blocks and
firmly screw the wires to the corresponding
terminals.
3. Secure the ground wire with the ground screw.
4. Fix the wires with a cord clamp.
Unit: in (mm)
CAUTION
• Firmly tighten the screws of the terminal block.
Keep the wire length as shown in figure below when it
is connected to the terminal block.
Wiring on the ceiling panel
According to the Installation Manual of the ceiling
panel, connect the connector (20P: White) of the
ceiling panel to the connector (CN510: White) on P.C.
board of the electric parts box.
Remote Control Wiring
• Strip off the wire approx. 0.4” (9 mm) to connect.
• For a single system, use non polarity, 2 core wire for
the remote control wiring. (2 x AWG 20)
• For the details of wiring/installation of the remote
control, refer to the Installation Manual enclosed with
the remote control.
Wiring diagram
▼ Single system
L
1
S
L
2
0.8” (20)
1.2” (30)
0.4” (10)
Ground wire
0.08”
(2 mm)
or less
System
interconnection wire
A
B
A
B
Terminal block
Remote
control
unit
Terminal block for
remote control wiring
of indoor unit
Remote control wire
(Field procurement)
A B
L
1
L
1
L
2
L
2
S
S
208/230-1-60
Indoor unit
Outdoor
unit
Remote
control
Low voltage
High voltage
21-EN
+00EH99864701_00Ta.book Page 21 Tuesday, November 24, 2009 4:54 PM
