Generac 004614-1 User Manual
Page 33

Generac
®
Power Systems, Inc. 31
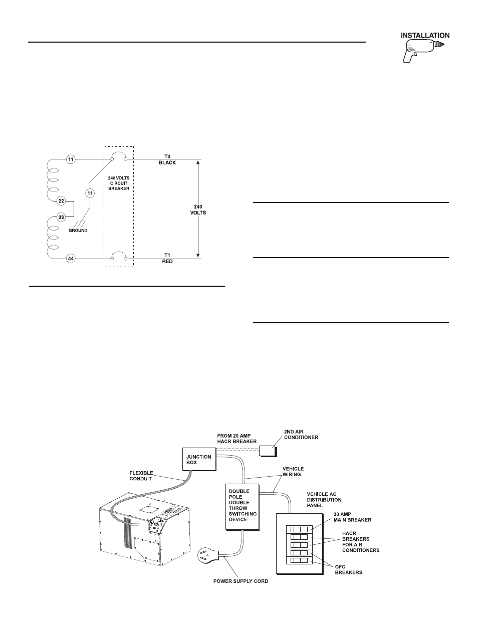
This generator set is equipped with dual-stator AC
power windings. These two-stator windings supply
electrical power to customer electrical loads by
means of a dual, two-wire connection system.
Figure 1.1 – Connections for 230 Volts Only
2.6.4 CONDUIT
Route the connections between the generator and the
junction box through approved, flexible conduit. The
following general rules apply:
• All wiring, conduit, and interconnections must be
installed in compliance with applicable codes,
standards, and regulations.
• Cut wiring to the required length, and allow extra
wire for junction box connections.
• Carefully prepare conduit ends to prevent sharp
edges from cutting through wiring insulation.
• Route conduit so it does not interfere with genera-
tor movement.
• If you use metallic conduit, vapor-seal the end of
the conduit where it enters the junction box. Do
this because flexible metallic conduit is not vapor-
proof along its entire length.
• All openings in the generator compartment for the
passage of wiring and conduit must be sealed and
made vapor-tight.
NOTE:
Use a high-quality silicone rubber base sealant or
other approved method (such as, explosion-proof
fittings) to seal such openings.
2.6.5 POWER SUPPLY CORD
The power supply cord must comply with all applic-
able codes, standards, and regulations. It must be
large enough to handle the full amperage to which it
will be subjected.
2.6.6 GROUND FAULT CIRCUIT INTERRUPTERS
The National Electrical Code (NFPA 70, 551-7)
requires that you install ground-fault circuit inter-
rupters (GFCIs) on all external and some internal
electrical receptacles. Contact your manufacturer or
dealer for recommendations.
2.6.7 ISOLATING DIFFERENT POWER SOURCES
Connections from the junction box must terminate in
a double-pole, double-throw transfer switch (Figure
2.17). An alternate method for isolating different
power sources includes using an isolating receptacle
(Figure 2.18 on page 32). Whichever method you use,
you must be certain that both power sources are NOT
connected at the same time.
◆
◆
◆
◆
Section 2 – Installation
QUIETPACT™ 65D Recreational Vehicle Generator
Figure 2.17 – Transfer Switch Isolation Method
