Directory
Brands
Garland manuals
Kiln
G280-2
Manual

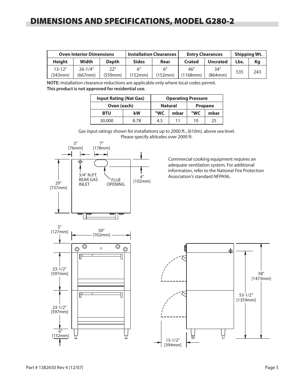
Dimensions and specifications, model g280-2 – Garland G280-2 User Manual

Page 5

  • Text mode
  • Original mode
Dimensions and specifications, model g280-2 | Garland G280-2 User Manual | Page 5 / 12 Dimensions and specifications, model g280-2 | Garland G280-2 User Manual | Page 5 / 12
Pages: 1 … 3 4 5 6 7 … 12
  • wrong Brand
  • wrong Model
  • non readable
See also other documents in the category Garland Kiln:
  • MP-GS (80 pages)
  • MCO-25R (2 pages)
  • Enodis HEEE-48Cl (2 pages)
  • G SERIES G36-G36T (2 pages)
  • Enodis RBA-36 (2 pages)
  • Enodis UIR36C (2 pages)
  • Cuisine Series Heavy Duty Broiler W/Adjustable Racks C836-336A (2 pages)
  • M100XM (2 pages)
  • Infra-Red Salamander Broiler BS-CX (2 pages)
  • Enodis PS-36RB-26 (2 pages)
  • G24-BRL (40 pages)
  • H280 (17 pages)
  • EC0-E-20 (20 pages)
  • Enodis HEEE-36Cl (2 pages)
  • 2000 SERIES ELECTRIC BAKE, ROAST AND COMBINATION OVENS (8 pages)
  • CPO-ES-12H (20 pages)
  • G2000 (2 pages)
  • MPOE5L (16 pages)
  • SUMG100S1 (2 pages)
  • RADIANT CHAR-BROILER 4522970 REV 1 (32 pages)
  • GAS PIZZA OVENS (28 pages)
  • Salamander Broiler (52 pages)
Home Brands Popular manuals Recently added
Manuals Directory

© 2012–2025, azmanual.top
All rights reserved.