Fluke DSP-2000 User Manual
Page 135

Basic Cable Testing
Troubleshooting Basics
7
7-23
Table 7-1. Identifying Cable Faults (continued)
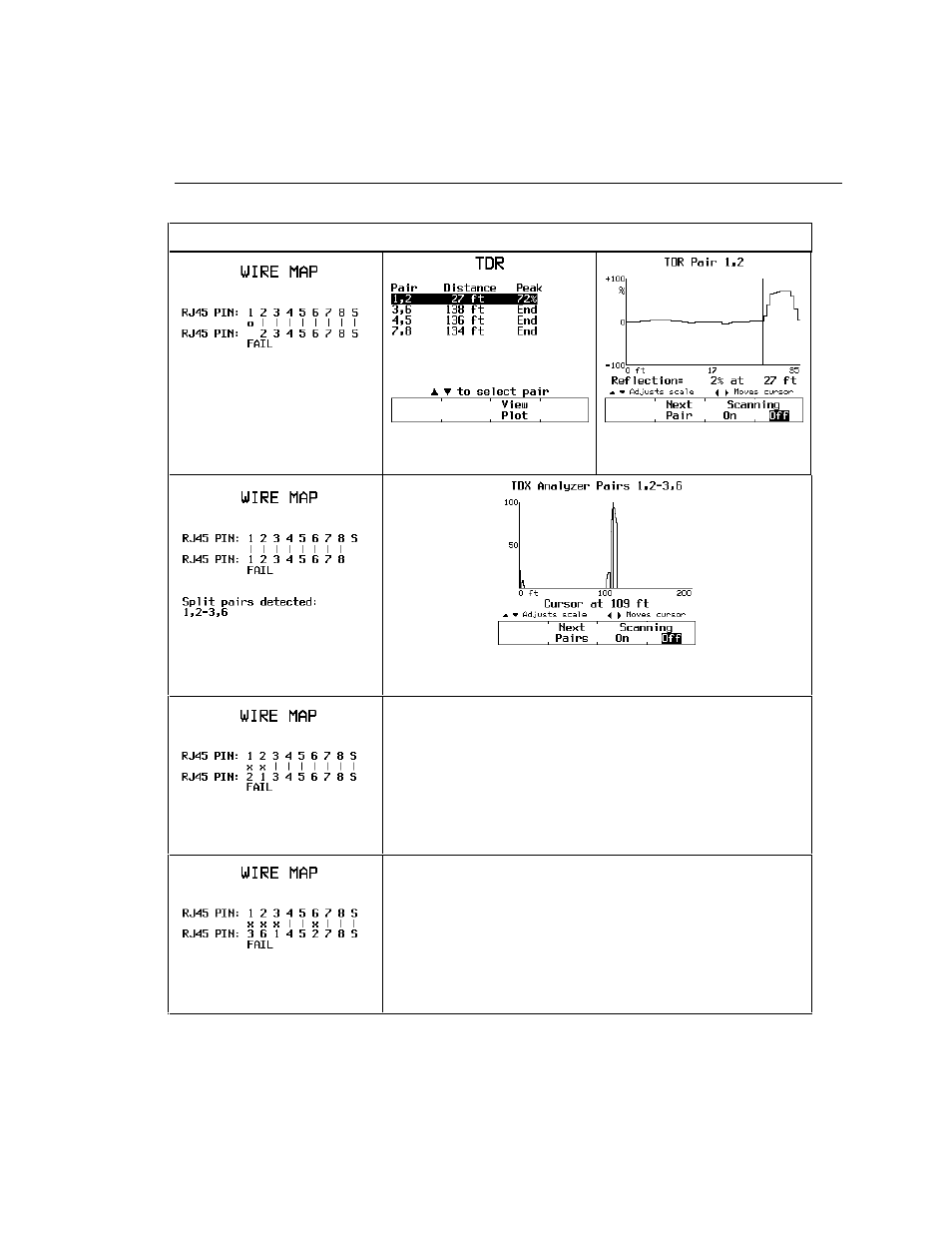
Examples of Test Displays and Plots
gc52i.eps
Wire map display showing an
open on pair 1,2.
gc57i.eps
TDR results showing open on
pair 1,2 at near-end connector.
gc58i.eps
TDR plot of results shown at
left.
gc59i.eps
Wire map display showing a
split pair on pairs 1,2 and 3,6.
gc60i.eps
TDX plot showing split pair in a short cable segment that starts
about 100 ft from test tool.
gc61i.eps
Wire map display showing
reversed pair on pair 1,2.
Inspect the cable connectors for reversed pairs.
gc62i.eps
Wire map display showing
crossed pairs on 1,2 and 3,6.
Inspect the cable connectors for crossed pairs.
This manual is related to the following products: