Search
Directory
Brands
Wolf manuals
Hobs
36 Inch Cooktop Installation Guide
Manual
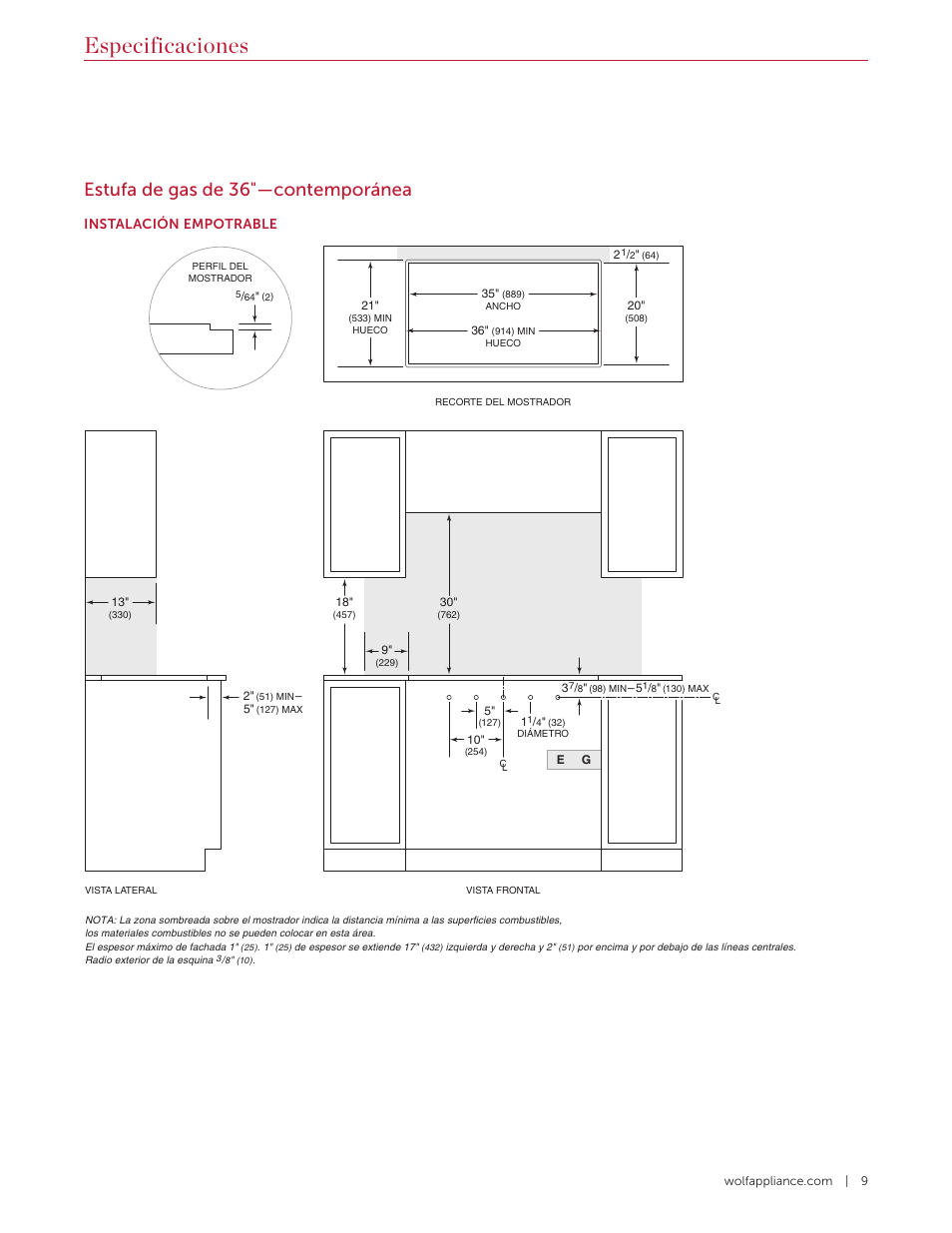
Especificaciones, Estufa de gas de 36"—contemporánea, Instalación empotrable – Wolf 36 Inch Cooktop Installation Guide User Manual
Page 23
Text mode
Original mode
Especificaciones, Estufa de gas de 36"—contemporánea, Instalación empotrable | Wolf 36 Inch Cooktop Installation Guide User Manual | Page 23 / 44
Pages:
1
…
21
22
23
24
25
…
44
wrong Brand
wrong Model
non readable
This manual is related to the following products:
30 Inch Professional Gas Cooktop Installation Manual
30 Inch Transitional Gas Cooktop Installation Guide
24 Inch Transitional Framed Gas Cooktop Install Guide
See also other documents in the category Wolf Hobs:
CT15I/S
(6 pages)
CT15E/S
(6 pages)
CT15G/S
(2 pages)
CT30E
(20 pages)
ICBIM15
(63 pages)
DD36R
(9 pages)
MULTI FUNCTION COOKTOP ICBIM15
(72 pages)
ICBCT36E
(94 pages)
CT36EU
(2 pages)
CT36IU
(2 pages)
M15/S
(2 pages)
ICBCT36EU
(94 pages)
SRT304
(2 pages)
Induction s ICBCT30IU
(100 pages)
CT30G
(7 pages)
Induction s ICBCT30I
(88 pages)
Burner Rangetop
(2 pages)
Multi-Function Cooktop
(63 pages)
ICBSRT304
(74 pages)
IM15/S
(6 pages)
IG15/S
(12 pages)
ICBCT15G
(74 pages)
24 Inch Transitional Framed Gas Cooktop Use & Care Guide
(32 pages)
30 Inch Electric Cooktop Induction and Electric Cooktop Installation Guide
(32 pages)
30 Inch Electric Cooktop Induction and Electric Cooktop Installation Guide
(32 pages)
Contemporary 30 Inch Induction Cooktop Use & Care Guide
(40 pages)
48 Inch Pro-Style Gas Rangetop Installation Guide
(26 pages)
48 Inch Pro-Style Gas Rangetop Use & Care Guide
(58 pages)
36 Inch Pro-Style Gas Rangetop Installation Guide
(26 pages)
36 Inch Pro-Style Gas Rangetop Use and Care Guide
(58 pages)