Insinger Commander 18-6VG User Manual

Page 22

background image

®

Commander18_6VGAddendumTM09

www.insingermachine.com 800-344-4802

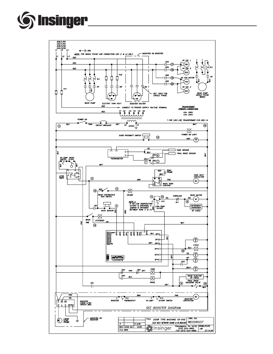
PART 5 ELECTRICAL SCHEMATICS & REPLACEMENT

20

This manual is related to the following products: