IAI America PDR-101-MW User Manual
Page 27

17
(2) Emergency
Stop
It must be possible to cut off the AC power supply via an electromagnetic contact in case of an
emergency stop.
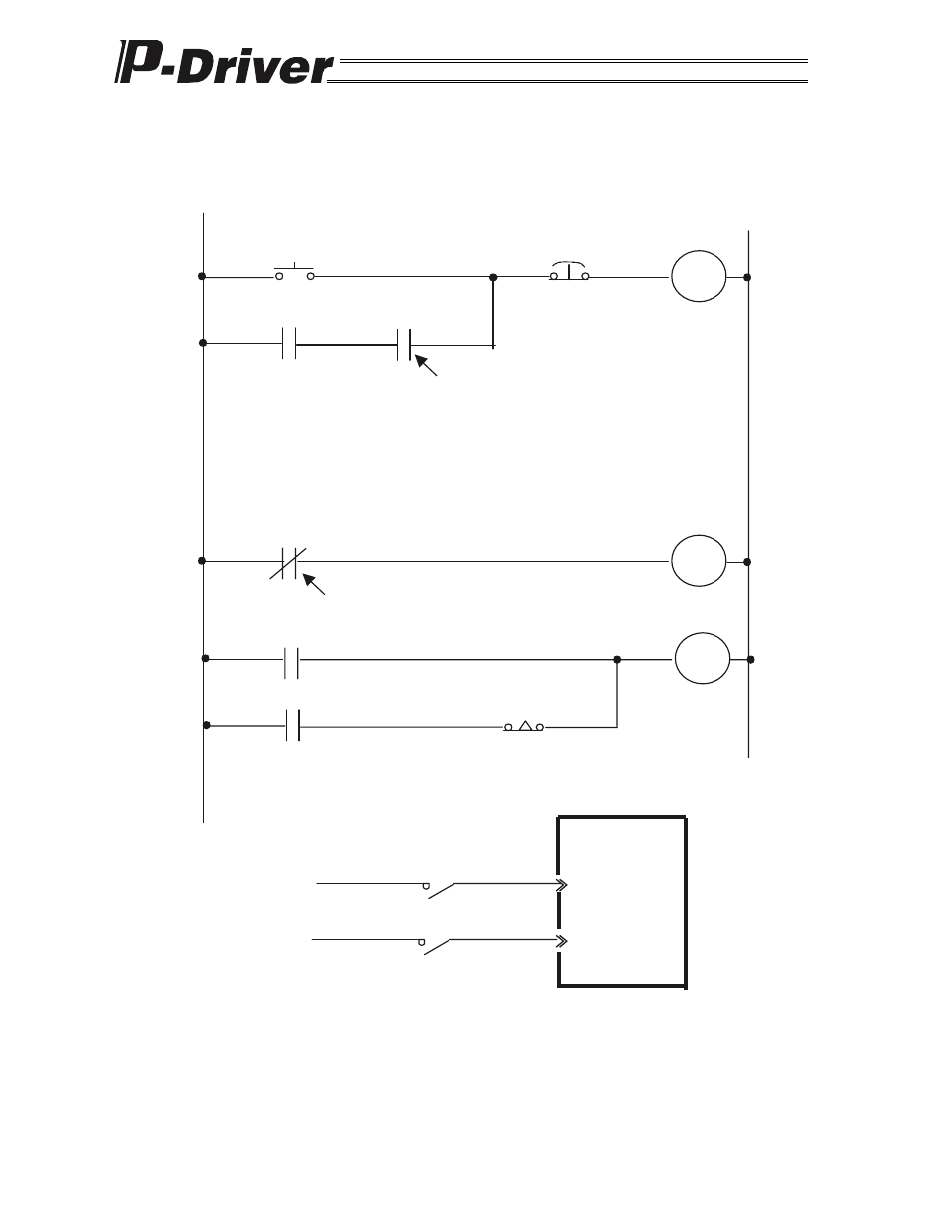
The following figure shows a reference circuit.
+
Turn the forced stop signal (CSTP) on by turning RY off.
When CSTP is turned on, the forced stop processing is performed and the servo is turned off.
Note that if the timer (T) is set short, the drive unit may be cut off before the servo is turned off and the
motor is placed in the free-run status and may become unable to stop. For this reason, wait until
sufficient time has elapsed to allow the motor to stop and then cut off the power to the drive unit (be
careful with the setting of T).
≫
≫
PB 1
EMG PB
RY
RY
T
RY
MS
MS
T
MS
L
N
P-Driver
(100 msec)
Emergency stop release switch
Emergency stop switch
Input an alarm/fault signal (ALM) (ON in normal
circumstances).
In this circuit, when PB 1 is turned on and the power is
supplied via MS, MS is self-maintained unless P-Driver
enters an alarm status.
MS is kept turned on unless EMG PB is pressed or
P-Driver enters an alarm status.
Input an operation ready signal (RUN).
* Reference value
Commercial power
