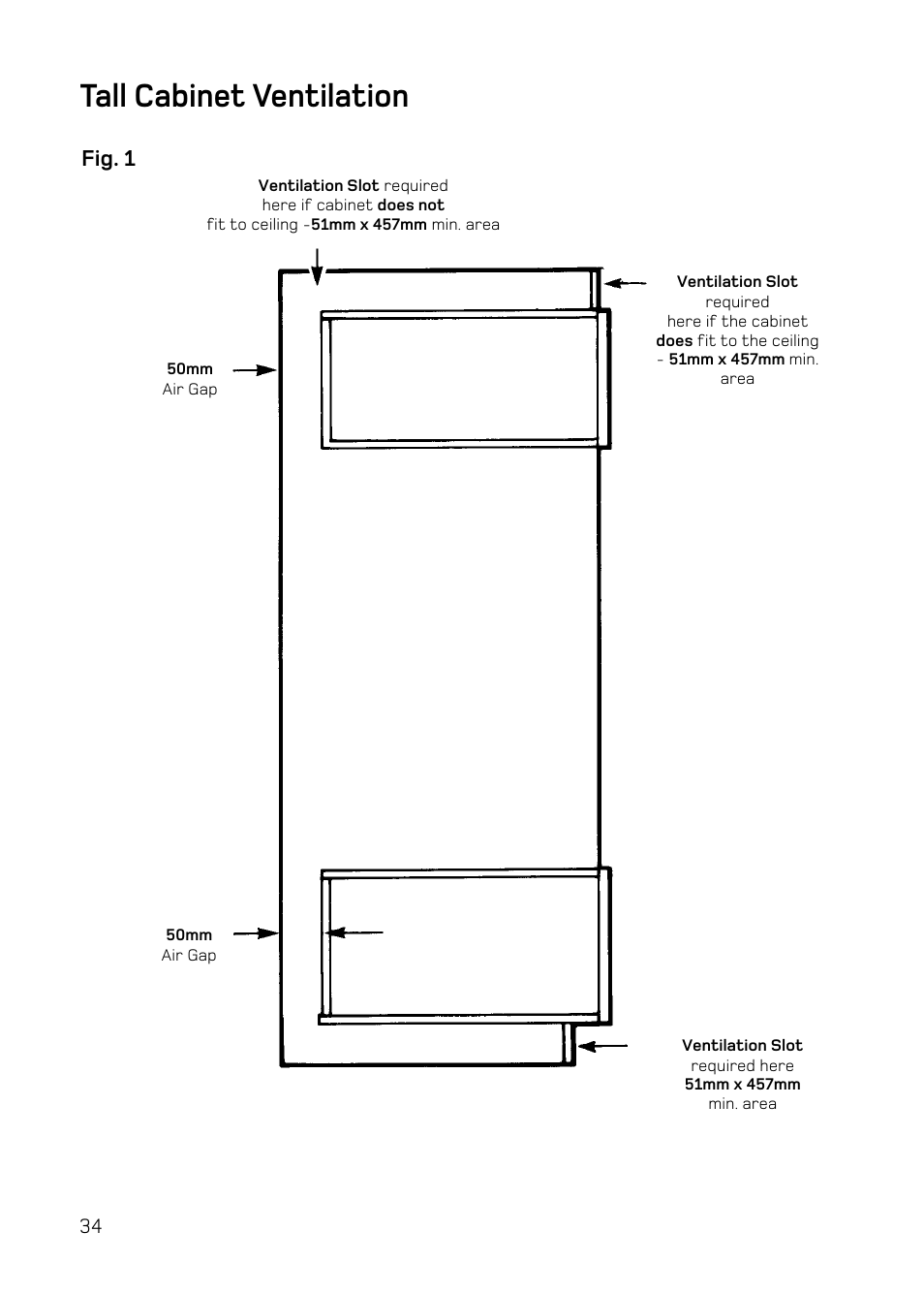
Tall cabinet ventilation, Fig. 1 – Hotpoint DY46 Mk2 User Manual
Page 34
See also other documents in the category Hotpoint Microwaves:
- X SY51 (12 pages)
- EW63 (40 pages)
- RGB744WEAWW (2 pages)
- S230G DY230G (36 pages)
- 6665 (3 pages)
- 6666 (69 pages)
- COUNTER SAVER PLUS RVM1325WW (2 pages)
- BD42 (40 pages)
- DQ89I (32 pages)
- RVM1635 (80 pages)
- Oven (36 pages)
- S150E (43 pages)
- EW45 (44 pages)
- MWH 121 (16 pages)
- AHP69PX (16 pages)
- RVM1335WC (2 pages)
- DQ77 (48 pages)
- BS42 BS52 (36 pages)
- BS73 BS63 (20 pages)
- S130E (36 pages)
- UY46 (40 pages)
- BD52 BD62 (48 pages)
- DY46 BD42 BD32 (40 pages)
- BU82 BU72 BU71 (40 pages)
- DOUBLE OVEN (36 pages)
- MWH221 (36 pages)
- COUNTER SAVER PLUS RVM1625SJ (2 pages)
- BS61 MK2 (40 pages)
- JES636 (32 pages)
- BD62 BD52 (48 pages)
- EG71 (32 pages)
- BD62 (52 pages)
- RVM1535 (40 pages)
- 6685X (36 pages)
- RVM1425 (40 pages)
- AHP67X (36 pages)
- rvm1625 (40 pages)
- MWH211 (23 pages)
- BD52 (48 pages)
- BU62 BU65 (36 pages)
- BS73E (20 pages)
- SE48101PX (20 pages)
- EDC51 (28 pages)
- 6675 (3 pages)
