47 electrical circuit diagram – Hayter Mowers Condor hydrostatic Drive 510D User Manual
Page 47

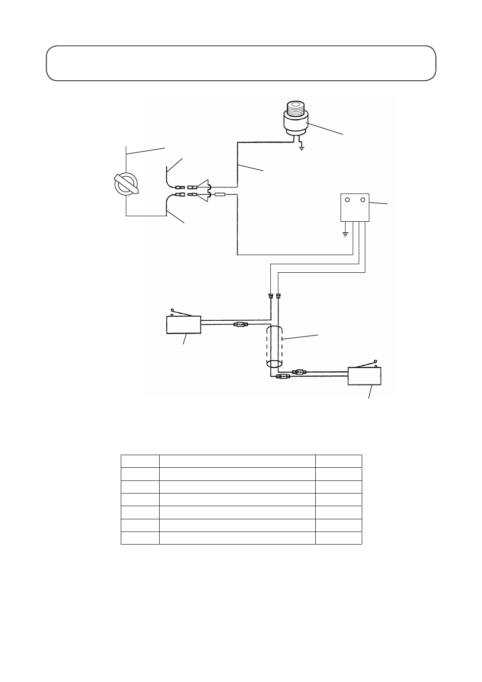
1.47
1.47
ELECTRICAL CIRCUIT DIAGRAM
Black
Black
Stop Switch
(Mounted on handlebar)
Control
Module
Stop Switch
Wire
Red
Red
Engine Stop
Switch Wire
Engine Stop
Switch
(Mounted On
Engine)
Engine Stop
Switch Wire
Red
Black
On
OFF
Yellow
Yellow
Switch Link Wire
Red
Transmission
Microswitch
Cutter Clutch
Microswitch
Blue
Red
Blue
4
6
5
1
2
7
Item No. Description
Part No.
1
Switch Assembly C/W Keys
510224
2
Control Module Assy
111-5820
4
Cable Assy Microswitch
510116
5
Cutterclutch Microswitch
510068
6
Transmission Microswitch
510069
7
Cable Assy Engine Stop
510227
See also other documents in the category Hayter Mowers Gardening equipment:
- Envoy Code 101C (32 pages)
- Harrier 48 490G (20 pages)
- Powertrim 111-1073 (28 pages)
- Power Trim 401C001001 (28 pages)
- Harrier 56 BBC (40 pages)
- 101 88 90-26 (15 pages)
- 405607x52A (124 pages)
- Harrier 41 Electric (32 pages)
- Jubilee 422V (36 pages)
- 10/30 (28 pages)
- 446 (32 pages)
- R48 Recycling Mower 447E (24 pages)
- Ranger 415A (34 pages)
- Harrier 56 560G (20 pages)
- Heritage Tractor Code143P 30-Dec (52 pages)
- 407D (28 pages)
- R48 (24 pages)
- 481A (36 pages)
- Hayterette 005D (36 pages)
- M10 (36 pages)
- Harrier 48/56 Pro 566G (18 pages)
- Motif 435F (36 pages)
- 433D (36 pages)
- Motif 432E (36 pages)
- G002741 (24 pages)
- Harier 56 3401 (36 pages)
- Motif 432F (40 pages)
- Harrier 41 413D (40 pages)
- Harrier 41 413E (40 pages)
- Hovertrim 184E XR44 (28 pages)
- RT380H (52 pages)
- Double 3 533A (33 pages)
- 13/30 (20 pages)
- Harrier 56 560F (44 pages)
- 131B (40 pages)
- Motif 434G (18 pages)
- Envoy 36 100E (16 pages)
- R48 Recycling Mower 447F (24 pages)
- RS 14/82 (22 pages)
- Motif 435A (36 pages)
- Envoy Lawn Mower 100D (32 pages)
- Envoy 36 (32 pages)
- Hawk 312A (36 pages)
- Harrier 41 410G (20 pages)
- R53S and R53A Recycling Mower 111-2842 Rev B (28 pages)
