Planning (continued), Warning – Craftsman 1/2 HP GARAGE DOOR OPENER MODEL 139.5364812 User Manual
Page 5
Attention! The text in this document has been recognized automatically. To view the original document, you can use the "Original mode".

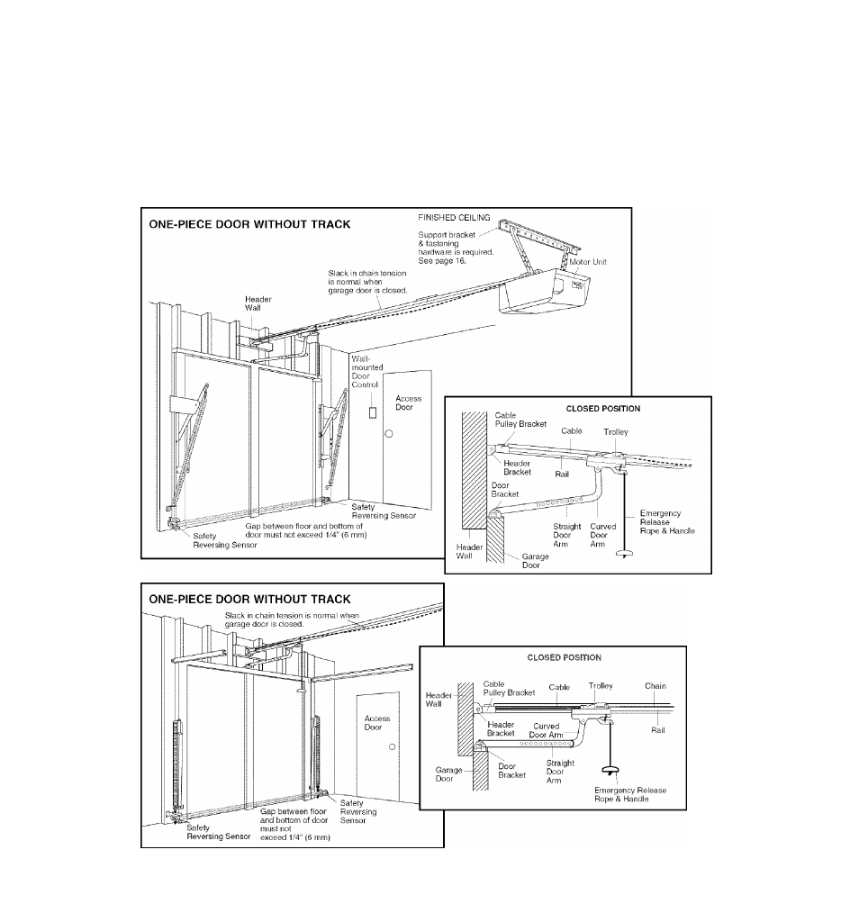
Planning (Continued)
ONE-PIECE DOOR INSTALLATIONS
• Generally, a one-piece door does not require
reinforcement. If your door is lightweight, refer to
the information relating to sectional doors in
Installation Step 11.
• Depending on your door’s construction, you may
need additional mounting hardware for the door
bracket (Step 11).
A
WARNING
Without a properly working safety reversal system,
persons (particularly small children) could be
SERIOUSLY INJURED or KILLED by a closing garage
door.
• The gap between the bottom of the garage door and
the floor MUST NOT exceed 1/4" (6 mm). Otherwise,
the safety reversal system may not work properly.
• The floor or the garage door MUST be repaired to
eliminate the gap.
