Drop-in induction / electric cooktops, Professional / gallery / baseline, Built-in cooktops – FRIGIDAIRE FFEC3605LB User Manual
Page 3: Callouts must be charted per individual model)

Accessories information available
on the web at
frigidaire.com
Drop-In Induction / Electric Cooktops
(Callouts MUST be charted per individual model).
Professional / Gallery / Baseline
USA
•
10200 David Taylor Drive
•
Charlotte, NC 28262
•
1-800-FRIGIDAIRE
•
frigidaire.com
CANADA
•
5855 Terry Fox Way
•
Mississauga, ON L5V 3E4
•
1-800-265-8352
•
frigidaire.ca
FFEC3605L 02/14
© 2014 Electrolux Home Products, Inc.
Specifications
subject to change.
Built-In Cooktops
FFEC3605L S / W/ B
36" Electric
•
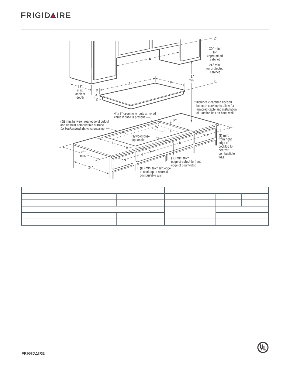
Allow 2-1/4" minimum clearance between rear edge of cutout and
nearest combustible surface (or backsplash) above countertop.
•
Allow 7-1/2" minimum required clearance from left edge of cooktop
to nearest combustible wall and 7-1/2" minimum from right edge of
cooktop to nearest combustible wall.
•
Installation of drawer not recommended beneath cooktop.
•
To reduce risk of fire when using overhead cabinetry, install
range hood that projects horizontally a recommended minimum
of 5" beyond bottom of cabinets.
•
Electric Drop-In Cooktop model FFEC3605L is NOT approved to be
used over any Frigidaire® Single Wall Oven.
Note: For planning purposes only. Refer to Product Installation Guide
on the web at frigidaire.com for detailed instructions.
Optional Accessories
•
Granite Countertop Installation Kit – (PN # 903061-9010).
Built-In Cooktop Specifications
•
Product Shipping Weight (approx.) – 30 Lbs.
•
Single phase 3- or 4-wire cable, 120 / 240 or 120 / 208 Volt, 60 Hertz
AC only electrical supply with ground required on separate circuit
fused on both sides of line.
•
Connected Load (kW Rating) @ 240 / 208 Volts = 6.7 / 5.0 kW
•
Amps @ 240 / 208 Volts = 22.3 / 19.2 Amps
•
Recommended Circuit Breaker – 30 Amps
•
Always consult local and national electric codes.
•
Cooktop cutout height includes clearance needed beneath cooktop to
allow for armored cable and installation of junction box on back wall.
Position center of junction box 10" inward from right side of cooktop
cutout, and 12" down from underside of countertop.
•
Overhead cabinetry should not exceed a 13" maximum depth.
•
Absolute minimum horizontal distance between overhead cabinets
installed to either side of appliance must be no less than 36".
•
Allow 30" minimum clearance between top of cooktop platform
and bottom of unprotected wood or metal overhead cabinet; or 24"
minimum clearance when bottom of wood or metal overhead cabinet
is protected by not less than 1/8" flame-retardant millboard covered
with not less than No. 28 MGS sheet steel, 0.015" stainless steel,
0.024" aluminum or 0.020" copper.
Product Dimensions
Required Clearances
A - Width
B - Depth
C - Height
G (min.)
H (min.)
I (min.)
J (min.)
36"
21-1/2"
3"
2-1/4"
7-1/2"
7-1/2"
2-1/2"
Product Cutout Dimensions
K - Cabinet Opening Width
(min.)
Utility Connection Locations
D - Width (min. - max.)
E - Depth (min. - max.)
F - Height (min.)*
Power Supply
32-3/4" - 34-1/4"
19" - 20"
5"
36"
Right Rear