Excludes side swing wall oven) – FRIGIDAIRE FFGC3613LS User Manual
Page 4

Specifications
subject to change.
30"/ 27" Electric Single Wall Oven
Under-Counter Installation Specifications
•
Single phase 3- or 4-wire cable, 120 / 240 or 120 / 208 Volt, 60 Hertz
AC only electrical supply with ground required on separate circuit
fused on both sides of line.
•
For detailed electrical requirements, refer to model-specific product
page and installation guide on web.
•
Always consult local and national electric codes.
•
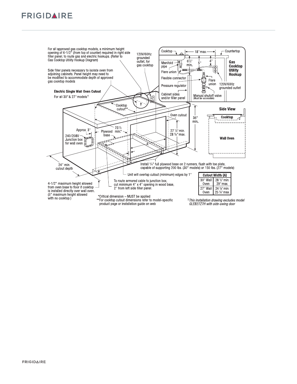
Minimum 21" clearance for oven door depth when open.
•
Minimum 23-1/2" deep cutout dimension is critical for proper
installation, to ensure that oven’s faceplate will fit flush against
cabinet front.
•
Side filler panels necessary to isolate oven from adjoining cabinets.
•
Full oven base of solid plywood or similar material required, capable
of supporting 200 Lbs. (30" models) or 150 Lbs. (27" models).
Install over two runners and flush with toe plate.
•
Base must be level and cabinet front must be square.
•
Allow 5" maximum height from oven base to floor, if NO cooktop is
installed directly over wall oven.
Gas Cooktop Installation Over
30"/ 27" Electric Single Wall Oven Specifications
All Frigidaire® Electric Single Wall Ovens are approved to be used
beneath any approved Frigidaire® Gas Cooktop. (This installation page
excludes approved wall oven model GLEB27Z7H. For model-specific
installation details, refer to Gas Cooktop Installation Over 27" Electric
Single Wall Oven GLEB27Z7H Specifications pages on web.)
For detailed Gas Cooktop installation, refer to model-specific product
page and installation guide on web.
•
Side filler panel height may need to be modified to accommodate the
depth of approved gas cooktop models.
•
Minimum height opening of 6-1/2" (from top of counter) required in
right side filler panel, to route gas and electric hookups.
•
Allow 4-1/2" maximum height from oven base to floor, if cooktop is
installed directly over wall oven.
Note: For planning purposes only. Refer to Product Installation Guide
on the web at frigidaire.com for detailed instructions.
USA
•
10200 David Taylor Drive
•
Charlotte, NC 28262
•
1-800-FRIGIDAIRE
•
frigidaire.com
CANADA
•
5855 Terry Fox Way
•
Mississauga, ON L5V 3E4
•
1-800-265-8352
•
frigidaire.ca
GC_EW INST FR 11/13
© 2013 Electrolux Home Products, Inc.
Combination Frigidaire Gas Cooktop/
30" & 27" Electric Wall Oven Under-Counter Installation
(excludes side swing wall oven)
Gas Cooktop Installation
Over 30"/27" Electric Single Wall Oven