Coleman PM402511 User Manual

Page 17

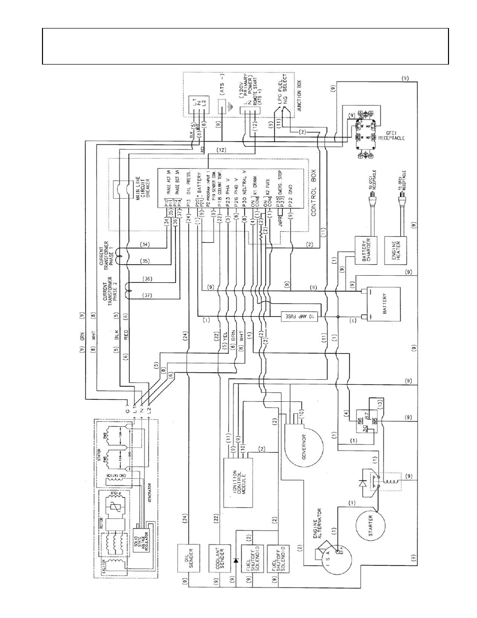
background image

2

2

5

5

K

K

W

W

W

W

I

I

R

R

I

I

N

N

G

G

D

D

I

I

A

A

G

G

R

R

A

A

M

M

(

(

C

C

P

P

5

5

0

0

0

0

C

C

O

O

N

N

T

T

R

R

O

O

L

L

L

L

E

E

R

R

)

)

SCHÉMA DE CÂBLAGE 25KW (CONTRÔLEUR CP 500)

DIAGRAMA DE CIRCUITO ELÉCTRICO DE 25 KILOVATIOS (CONTROLADOR CP500)

17