Installation, Junction box, Mounting the ppm hydrogen transmitter – RKI Instruments 65-2442RK User Manual
Page 8

4 • 65-2442RK PPM Hydrogen Transmitter
Test Points
The test points are in the lower left corner of the amplifier on either side of the gas select
jumper strip (see Figure 1). The test points produce a 100 to 500 mV output that
corresponds to the transmitter’s 4 to 20 mA output. Use the test points and a voltmeter to
measure the amplifier’s output during the start-up and calibration procedures. The black
test point on the left is the negative (-) test point and the red test point on the right is the
positive (+) test point.
Junction Box
Use the junction box to install the transmitter at a mounting site that is remote from the
controller. The junction box also protects the amplifier and wiring connections made to
the amplifier. Use the top 3/4 inch conduit hub to connect wiring from the amplifier to the
controller. Use the cover on the front of the junction box to access the interior of the
junction box. The detector and amplifier are factory installed in the junction box.
Installation
This section describes procedures to mount the ppm hydrogen transmitter in the
monitoring environment and wire the transmitter to a controller.
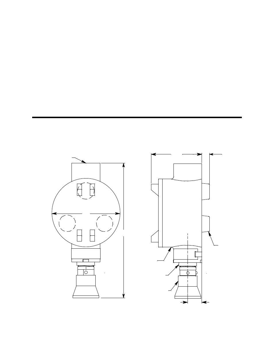
Mounting the PPM Hydrogen Transmitter
Figure 2: Mounting the PPM Hydrogen Transmitter
.38
2.70
J Box
3/4 NPT Female
3.65
.75
Rubber
Spacers,
3X
Hydrogen
Detector
3/4 x 1/2 Reducing
Bushing
7.5 max