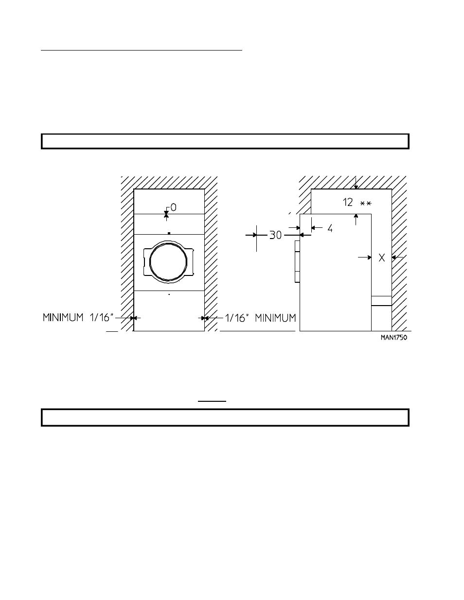
C. dryer enclosure requirements – American Dryer Corp. Super AD-30 User Manual
Page 14
See also other documents in the category American Dryer Corp. Dryers:
- SL2929 (8 pages)
- AD-15 Phase 7 (31 pages)
- ML-75DIII (65 pages)
- AD-236 (33 pages)
- AD-50V (61 pages)
- ML-96HS (38 pages)
- 75 lb (6 pages)
- SL2020 (8 pages)
- AD-758DV (52 pages)
- Aquatex AD-76 (36 pages)
- MDG-75 (66 pages)
- MLG-130DR (HSI) (45 pages)
- MLG31PCB (44 pages)
- AD-410 (72 pages)
- AD-75THS (49 pages)
- Direct Spark Ignition ADG-530DSi II (33 pages)
- MLG32PD3 (39 pages)
- ML-55 (52 pages)
- ML-96 (34 pages)
- ADG-410 (75 pages)
- ADG-320D (53 pages)
- Phase 7 Gas/Steam AD-464 (62 pages)
- AD-120ES (50 pages)
- Gas/Electric/Steam ML-55HS (56 pages)
- AD-840 (47 pages)
- MDG31 (26 pages)
- D20 (37 pages)
- Aquatex AD-52 (37 pages)
- Phase 7 D30 (39 pages)
- 30 lb. Stacked Models (26 pages)
- ADH-120 (46 pages)
- ML-96D (43 pages)
- Super AD-50 (54 pages)
- ML-122 (52 pages)
- SL31 (12 pages)
- MDG30V (52 pages)
- AD-670 (60 pages)
- SL31AD-15 (72 pages)
- ADS-464 II (80 pages)
- ML-190 (42 pages)
- Heat Reclaimer AD-170HR (20 pages)
- 50 lb. Single Pocket MDG50V (52 pages)
- 24 VAC Phase 5 AD-330 (40 pages)
- D75 (42 pages)
