Search
Directory
Brands
Aprilaire manuals
Humidifiers
1150
Manual
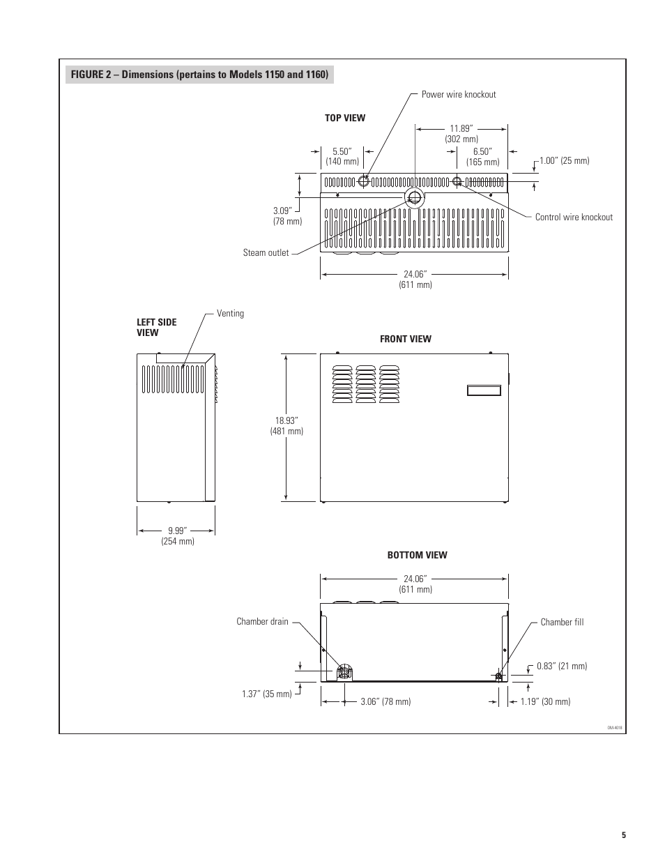
Aprilaire 1150 User Manual
Page 5
Text mode
Original mode
Aprilaire 1150 User Manual | Page 5 / 40
Pages:
1
…
3
4
5
6
7
…
40
wrong Brand
wrong Model
non readable
This manual is related to the following products:
1160
See also other documents in the category Aprilaire Humidifiers:
700
(11 pages)
700
(20 pages)
700
(20 pages)
800
(9 pages)
445
(20 pages)
768
(20 pages)
448
(20 pages)
1952
(12 pages)
500M EN
(11 pages)