Search
Directory
Brands
Avalon Stoves manuals
Tools
Arbor PS
Manual
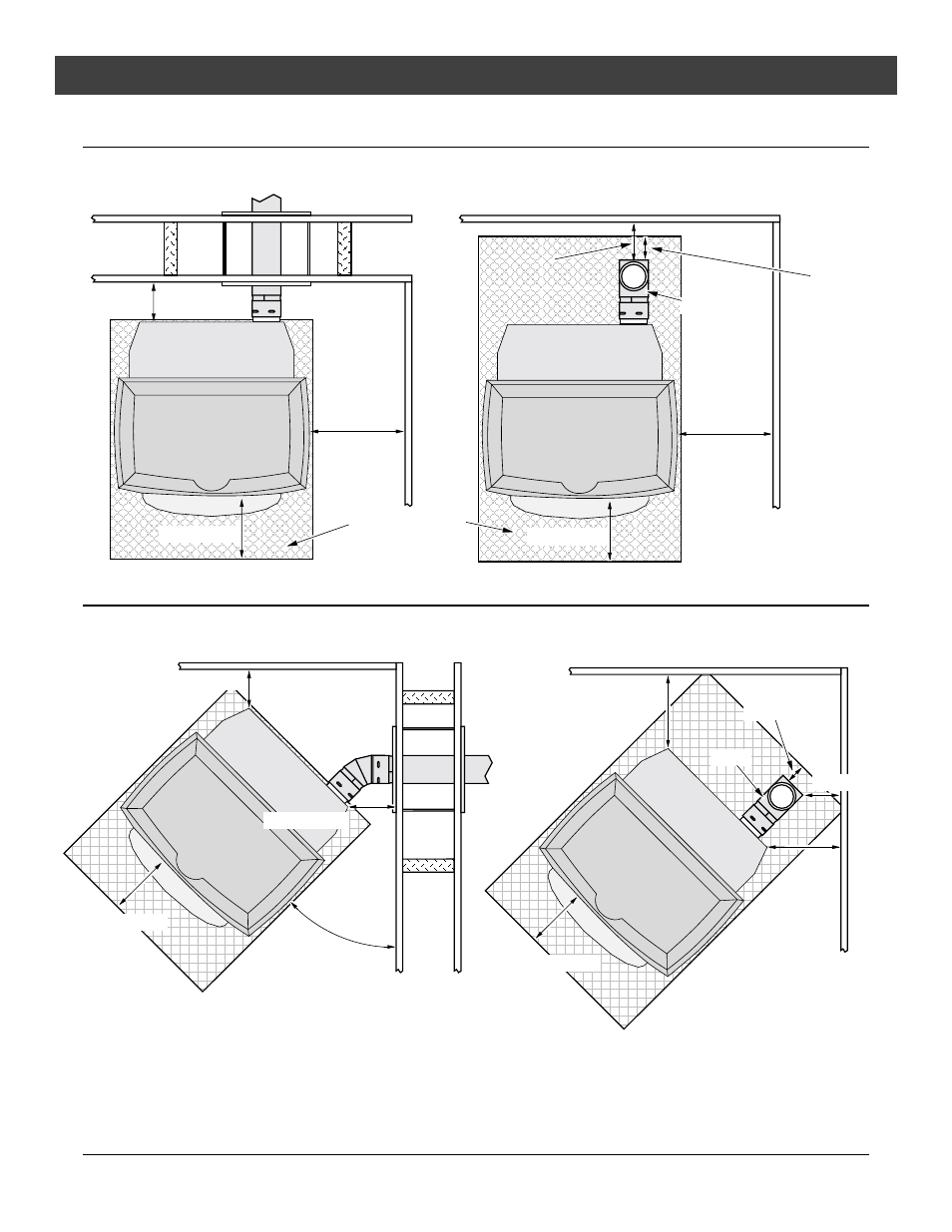
Installation, For qualified installers only), Clearances - straight installation – Avalon Stoves Arbor PS User Manual
Page 8: Clearances - corner installation
Text mode
Original mode
Installation, For qualified installers only), Clearances - straight installation | Clearances - corner installation | Avalon Stoves Arbor PS User Manual | Page 8 / 42
Pages:
1
…
6
7
8
9
10
…
42
wrong Brand
wrong Model
non readable
See also other documents in the category Avalon Stoves Tools:
Freestanding Stove
(42 pages)
Spokane 1750
(2 pages)
Pellet Burning Stove
(2 pages)
Cedar EF
(42 pages)
Direct Vent Freestanding Stove
(46 pages)
Tree of Life
(4 pages)
Rainier
(44 pages)
CHELAN B-VENT 700 B-VENT
(34 pages)
790
(44 pages)
Avalon Pellet Stove Astoria PS
(42 pages)
Arbor
(38 pages)
Wood Burning Stove & Insert
(24 pages)
Astoria PS
(42 pages)