Ge monogram – GE ZDP486NRPSS User Manual
Page 2

For answers to your Monogram,
®
GE Profile
™
or
GE
®
appliance questions, visit our website at
geappliances.com or call GE Answer Center
®
service, 800.626.2000.
130559
Specification Revised 4/11
Listed by
Underwriters
Laboratories
ZDP486NRPSS (Natural Gas)
ZDP486LRPSS (Liquid Propane)
GE Monogram
®
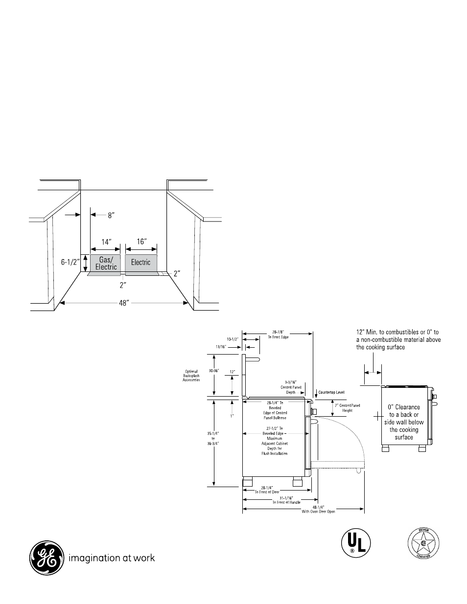
48" Dual-Fuel Professional Range with 6 Burners and Grill
Dimensions and Installation Information (in inches)
Electrical Requirements
Ranges must be supplied with 208/240V, 60Hz, and
connected to an individual, properly grounded branch circuit
protected by a circuit breaker or time-delay fuse. Install a 50-
amp circuit for 48" ranges. The receptacle must be a NEMA
14-50R device to accept the four-prong plug on the range.
Optional Backsplash Accessories
The range requires a 12" minimum clearance to a vertical
combustible surface at the rear. A backsplash is required
for installations with less than 12" clearance. The following
backsplash accessories are available, or a custom, non-
combustible backsplash can be used.
Order one with a 48"-wide range backsplash
ZX12B48PSS–12" backsplash
ZXADJB48PSS– 30"-36" adjustable-height backsplash with
warming shelf
Side View with a Backsplash
Gas Supply
• The natural gas models are designed to
operate at 5" water column pressure.
For proper operation, the pressure of
the natural gas supplied to the regulator
must be between 7" and 13" water
column.
• The LP models are designed to operate
at 10" water column pressure. For
proper operation, the pressure of the LP
gas supplied to the regulator must be
between 11" and 13" water column.
Locate gas and
electric as shown
Universal Utility Locations