Cabinet dimensions – Alliance Laundry Systems Drying Cabinet User Manual
Page 12

© Copyright, Alliance Laundry Systems LLC – DO NOT COPY or TRANSMIT
Specifications and Dimensions
70304601
10
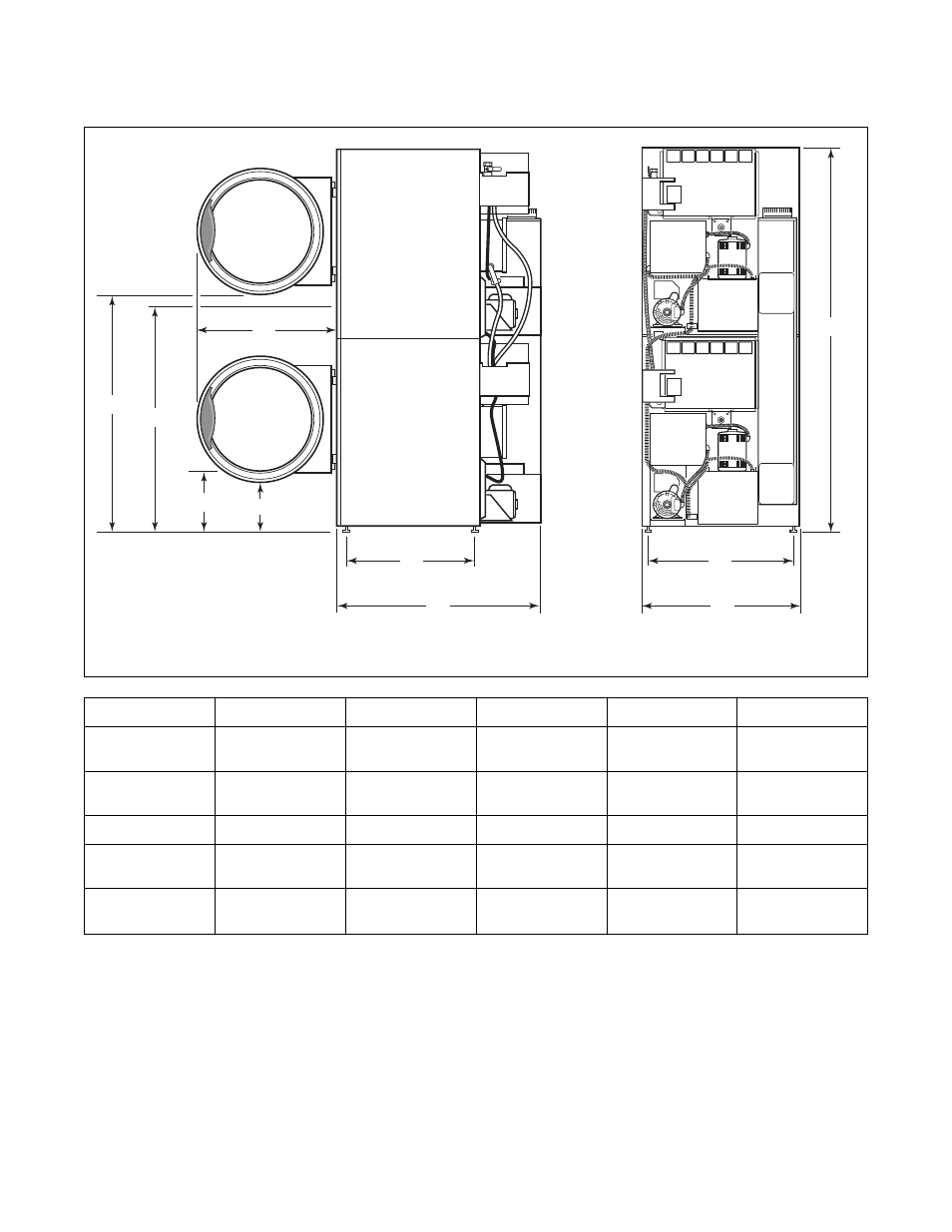
Cabinet Dimensions
N/A = Not Applicable
NOTE: To meet ADA compliance, install a 4 inch
(102 mm) riser on T30 models only.
TMB2230N
TMB2230N
C
E
F
H
J
B
D
G
I
A
Models
A
B
C
D
E
T30
28 in.
(711 mm)
48 in.
(1219 mm)
44 in.
(1118 mm)
11 in.
(279 mm)
10 in.
(254 mm)
T45
31.88 in.
(810 mm)
49 in.
(1245 mm)
N/A
N/A
9 in.
(229 mm)
Models
F
G
H
I
J
T30
25.02 in.
(636 mm)
42.76 in.
(1086 mm)
27.38 in.
(695 mm)
31.5 in.
(800 mm)
76.25 in.
(1937 mm)
T45
29.37 in.
(746 mm)
48.62 in.
(1235 mm)
30.50 in.
(775 mm)
34.5 in.
(876 mm)
81.25 in.
(2063.75 mm)