Beko BU 1201 User Manual
Page 169

DA
10
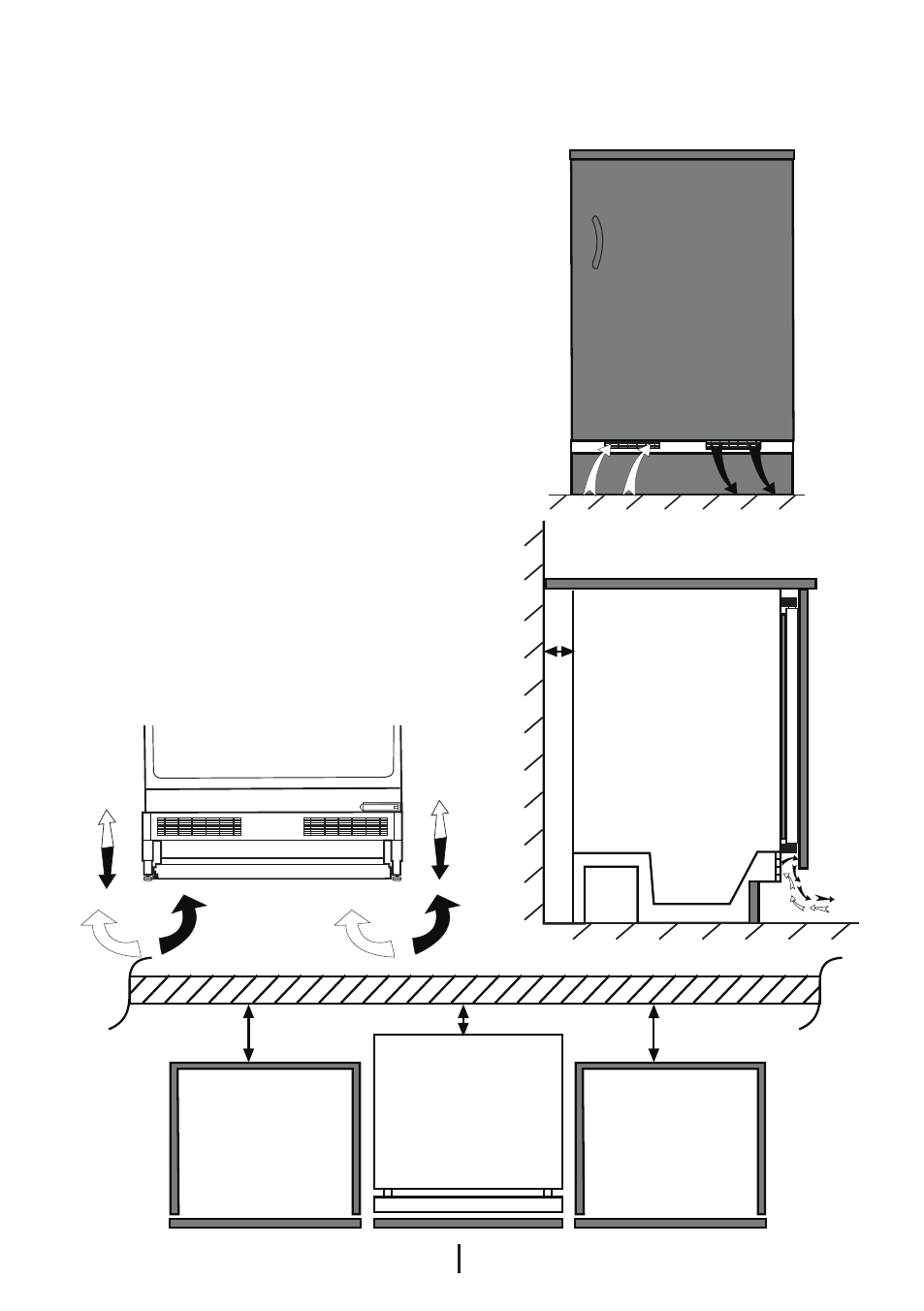
Placering af køleskabet under bordet
og justering af fødder
Når du opstiller dit køleskab, skal afstanden mellem
produktet og væggen være på mindst 10 cm, som
vist i figuren.
Lufkanalerne må ikke blokeres, så køleskabets
ydeevne ikke forringes. (140 cm
2
)
Hvis køleskabet ikke er i balance;
Du kan dreje de forreste læg i køleskabet som vist
i figuren og få det i balance. Det hjørne, hvor benet
befinder sig, bliver sænket, når du drejer i retning af
den sorte pil, og hævet, når du drejer i den modsatte
retning. Det bliver nemmere for dig, hvis du får hjælp
fra en anden person til at udføre denne justering!
10 mm
40 mm
40 mm
10 mm
This manual is related to the following products: