Beko BU 1201 User Manual
Page 115

RU
10
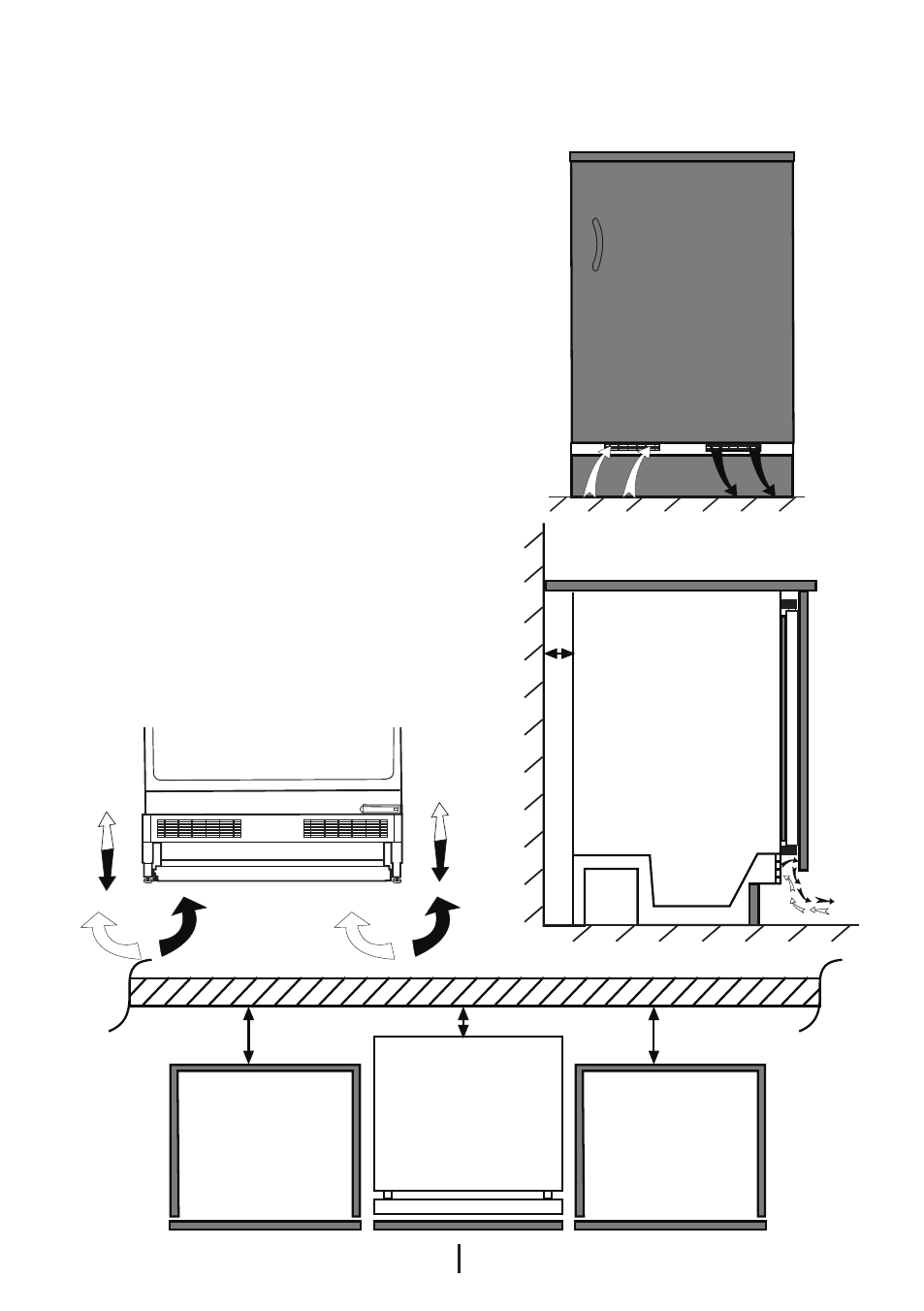
Установка холодильника
под стойкой и регулировка
ножек
При установке холодильника расстояние
между стеной и изделием не должно
быть меньше 10 см, как показано на
рисунке.
Воздуховод не должен быть
закупорен во избежание снижения
производительности холодильника. (140
см2)
Если холодильник расположен
неустойчиво:
холодильник можно сбалансировать,
поворачивая передние ножки, как
показано на рисунке. Угол холодильника,
в котором находится ножка, будет
опускаться, если поворачивать по
направлению черной стрелки, и
подниматься, если поворачивать в
обратном направлении. Если кто-то
может приподнять холодильник, это
облегчит процесс.
10 mm
40 mm
40 mm
10 mm
This manual is related to the following products: