Straight out, 45 degree, Cb 1200 pellet stove – Quadra-Fire CB1200-B User Manual
Page 13: B. through the wall

R
R
R
September 1, 2008
7014-082D
Page 1
CB 1200 Pellet Stove
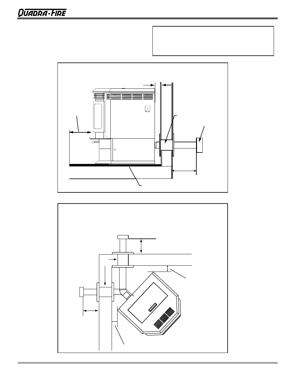
12 in.
(05mm)
Minimum
Non-combustible Hearth Pad
Wall
Thimble
Horizontal
Termination
Cap
2 in.
(51mm)
Minimum
6 in.
(152mm)
Minimum
From Glass
Straight Out
B. Through The Wall
Horizontal termination cap must be a minimum of 12 inches.
(05mm) from the wall. Approved for mobile home instal-
lations. Must use or 4 inch (76-102mm) “L” or “PL” listed
pellet venting or listed double wall pipe and a Quadra-Fire
outside air kit in mobile homes.
NOTE:
In Canada, where passage through a wall or partition of
combustible construction is desired, the installation shall
conform to CAN/CSA-B65
Figure 13.1
Figure 13.2
Wall
Thimble
Illustration shows venting going in both directions.
Choose which one is best for your installation.
2 in. (51mm)
Minimum
2 in. (51mm)
Minimum
12 in.
(05mm)
Minimum
12 in. (05mm)
Minimum
45 Degree
