PI Manufacturing AC generators User Manual
Page 21

6.4.1 RESETTING THE BREAKER
In the event of operation of the circuit breaker, indicated by
loss of generator output voltage, manual resetting is required.
When in the "tripped" state the circuit breaker switch lever
shows "OFF". To reset move the switch lever to the position
showing "ON".
When fitted in the generator, access to the breaker is gained
by removal of the AVR access cover.
Terminals which are LIVE with the
generating set running are exposed when
the AVR access cover is removed.
Resetting of the circuit breaker MUST be
carried out with the generating set
stationary, and engine starting circuits
disabled.
The circuit breaker is mounted on the AVR mounting bracket
either to the left or to the right of the AVR depending upon
AVR position. After resetting the circuit breaker replace the
AVR access cover before restarting the generating set.
Should resetting of the circuit breaker not restore the
generator to normal operation, refer to subsection 7.5.
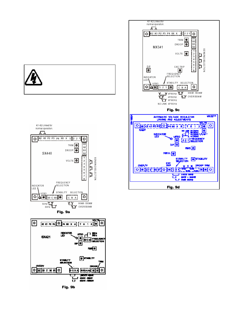
6.5 CURRENT LIMIT - MX321 AVR
These accessories work in conjunction with the AVR circuits
to provide an adjustment to the level of current delivered into
a fault. One current transformer (CT) per phase is fitted to
provide current limiting on any line to line or line to neutral
fault.
Note: The W phase CT can also provide "DROOP". Refer to
6.2.1.1 for setting droop independent of current limit.
Adjustment means is provided with the "I/LIMIT" control
potentiometer on the AVR. Refer to Fig. 9d for location. If
current limit transformers are supplied with the generator the
limit will be set in accordance with the level specified at the
time of order, and no further adjustment will be necessary.
However, should the level need to be adjusted, refer to the
setting procedure given in 6.5.1.
6.5.1 SETTING PROCEDURE
Run the generating set on no-load and check that engine
governor is set to control nominal speed.
Danger !
